Bauland kaufen - Ried, 3772 St. Stephan
Warum Sie diese Immobilie lieben werden
Atemberaubende Bergsicht
Flexible Gestaltungsmöglichkeiten
Projektpläne inklusive
Besichtigung vereinbaren
Besichtigung mit Lukas buchen
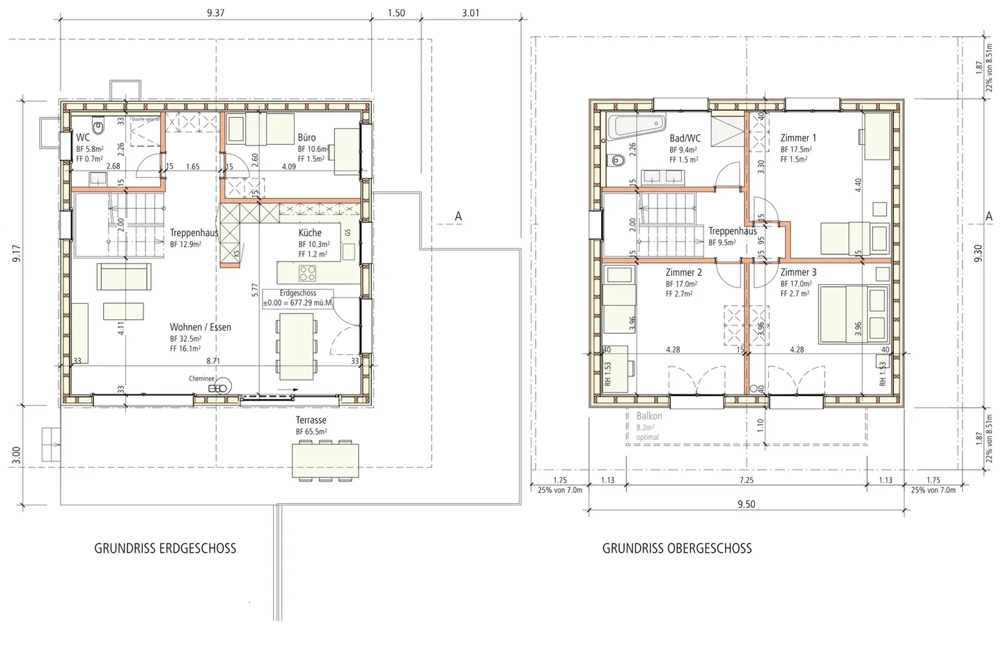
Baulandparzelle mit 5-Zimmer Einfamilienhaus-Vorprojekt im Grünen
Verwirklichen Sie Ihren Traum vom eigenen Einfamilienhaus. Diese grosszügige Baulandparzelle liegt im bekannten Wander- und Skigebiet Adelboden-Lenk. Sie grenzt im Norden und Osten an die Landwirtschaftszone und bietet Ihnen wunderbare Weit- und Bergsicht.
Zum Verkauf steht das Grundstück mit einer Fläche von 684 m² inklusive eines 5-Zimmer-Einfamilienhaus-Vorprojekts mit Doppelgarage.
Die vollständigen Projektpläne (DWG-Dateien) sind im Kaufpreis enthalten und bieten Ihnen die Möglichkeit, unmi...
Immobiliendetails
- Verfügbar ab
- Nach Vereinbarung
- Grundstücksfläche
- 684 m²




