Bauland kaufen - Route Des Vuarennes 32, 1523 Granges-près-Marnand
Warum Sie diese Immobilie lieben werden
Ruhige, grüne Umgebung
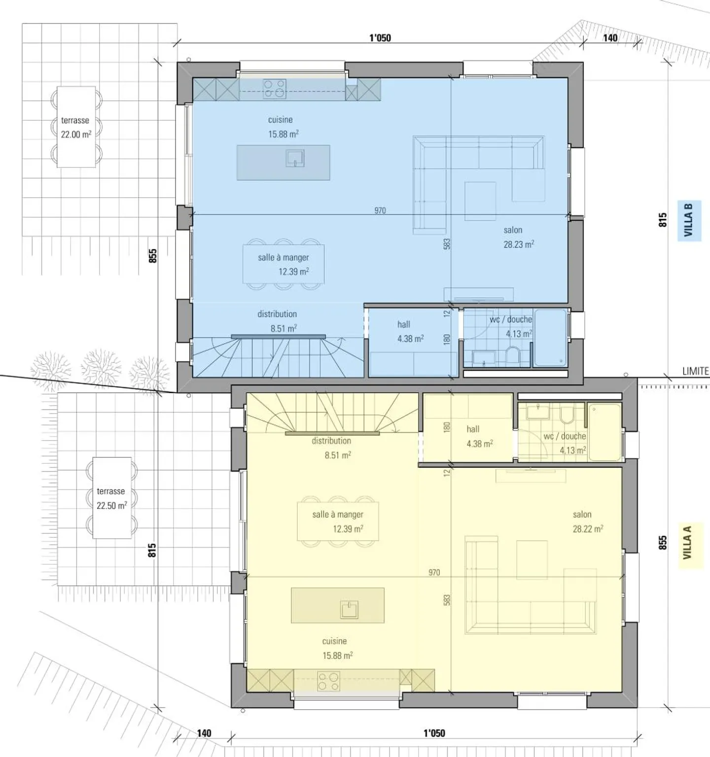
Optimale Raumaufteilung
Erdwärmepumpe
Besichtigung vereinbaren
Besichtigung mit SYLVIA buchen
Baugrundstück
Ihr kleines Nest in einer grünen Umgebung
Das Grundstück befindet sich in Granges-près-Marnand, in der Gemeinde Valbroye, und profitiert von einer ruhigen, grünen Umgebung, die besonders angenehm zu leben ist. Das Dorf ist für seine Lebensqualität sehr geschätzt und bietet ein ausgewogenes Verhältnis zwischen Wohnruhe und alltäglicher Praktikabilität. Granges-Marnand bietet eine breite Palette an Annehmlichkeiten (Bahnhof, Apotheke, Einkaufszentrum, Grundschule sowie Nachmittagsbetreuung usw.), d...
Immobiliendetails
- Verfügbar ab
- Nach Vereinbarung
- Wohnfläche
- 663 m²



