Geschäft kaufen - Verbier, 1936 Verbier
Warum Sie diese Immobilie lieben werden
Helle natürliche Beleuchtung
Hochwertige Marmoroberflächen
Bevorzugte Lage bei Luxushotels
Besichtigung vereinbaren
Besichtigung mit Neil buchen
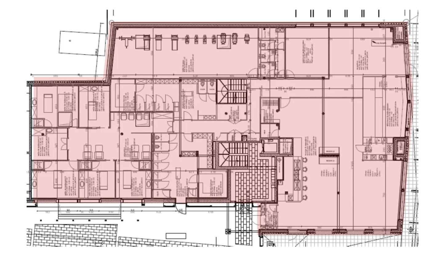
Dieser prächtige Verkaufsraum, der sich im Herzen von Verbier, nur wenige Schritte von den Skiliften entfernt, befindet, hat eine strategische Lage in unmittelbarer Nähe zu Hotels wie dem Bristol, La Rotonde sowie L'Ermitage oder dem Luxus-Chalet Experimental Chalet. Renommierte Geschäfte wie Moncler, Fusalp und MGG sind in weniger als 150 Metern erreichbar. Die außergewöhnliche Lage dieses Raumes verleiht jeder Aktivität, die sich dort niederlassen möchte, eine große Attraktivität.
GEBÄUDE
Dies...
Immobiliendetails
- Verfügbar ab
- Nach Vereinbarung
- Wohnfläche
- 900 m²
- Grundstücksfläche
- 3392 m²



