Gewerbe kaufen - Suhrenmattstrasse, 5035 Unterentfelden
Warum Sie diese Immobilie lieben werden
Geräumiger Außenparkplatz
Helle, moderne Schaufenster
Großes Lager mit Zugang
Besichtigung vereinbaren
Besichtigung buchen
Modernes gewerbeobjekt an sehr guter lage vor den toren aarau's zu verkaufen
**Aussen
**Der Aussen- und Zufahrtsbereich ist grosszügig und offen konzipiert. Die Aussenansicht ist hell, einladend und modern gestaltet. Zum Objekt gehören 8 Aussenparkplätze mit entsprechend eingetragenem Benützungsrecht.
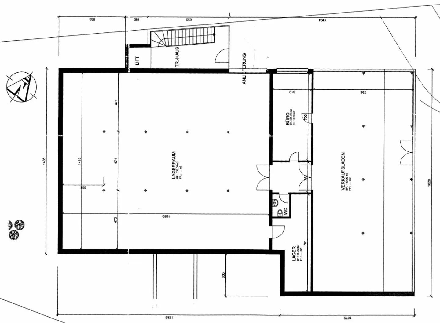
Ladenlokal
Das Ladenlokal ist sehr ansprechend und modern gestaltet. Die grossflächigen Schaufensterfronten bieten grosszügigen Lichteinfall und ermöglichen eine gute Einsicht von aussen. Sie machen das Lokal hell und lassen es freundlich und modern erscheinen. Das Ladenlokal ...
Immobiliendetails
- Verfügbar ab
- Nach Vereinbarung
- Baujahr
- 2004
- Wohnfläche
- 415 m²
- Nutzfläche
- 415 m²



