Bürofläche kaufen - Via Stefano Franscini 9, 6710 Biasca
Warum Sie diese Immobilie lieben werden
Hohe Fußgängerfrequenz
Vielseitige Nutzungsmöglichkeiten
Aktuelle Rendite von 5,5 %
Besichtigung vereinbaren
Besichtigung buchen
Biasca - gewerblicher raum mq 60 - grosses fenster
Ideal für einen Händler, der seinen eigenen Raum haben möchte.
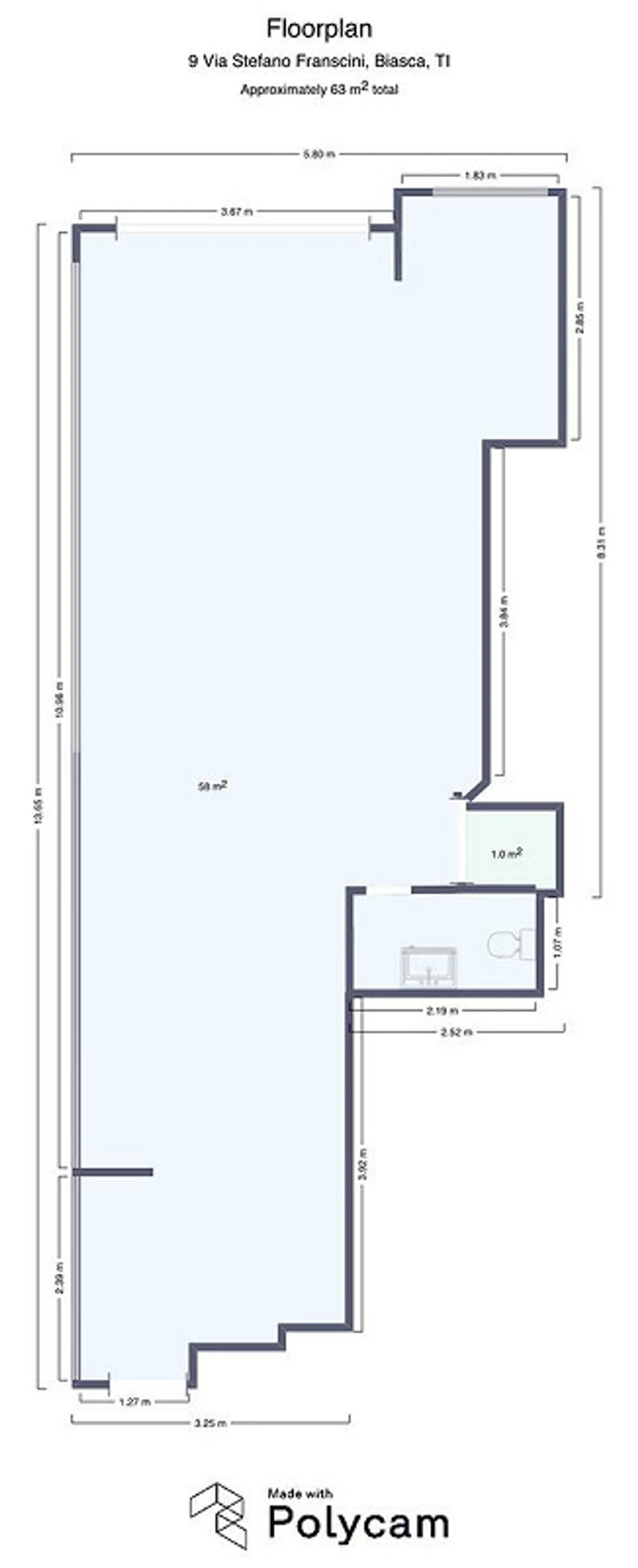
In guter kommerzieller Lage mit öffentlichen Parkplätzen und in der Nähe von Schulen und Wohngebieten, VERKAUFE ich einen Gewerberaum von ca. 60 qm im Erdgeschoss plus einen Abstellraum von 25 qm im Untergeschoss und einen großen doppelten unbedeckten Parkplatz.
Vor dem Schaufenster des Geschäfts gibt es einen Durchgangsbereich, der auch zur Ausstellung Ihrer Produkte genutzt werden kann, und der Abstellraum ist bequem vom Verkaufsraum...
Immobiliendetails
- Verfügbar ab
- Nach Vereinbarung



