Geräumiger Lagerraum in Villars
Warum Sie diese Immobilie lieben werden
Direkter Zugang von außen
Optimale Raumnutzung
Ideal für logistische Aktivitäten
Besichtigung vereinbaren
Besichtigung mit buchen
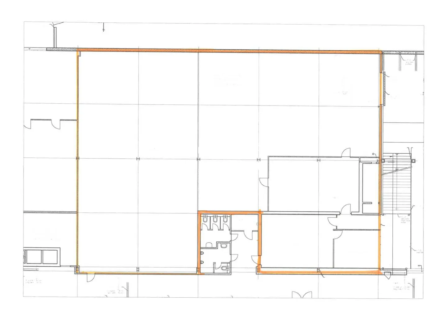
H & P Partners Sàrl bietet eine geräumige Lagerfläche von 655 m², die eine hervorragende Gelegenheit für logistische, handwerkliche oder Lageraktivitäten bietet, gelegen in Villars-Sainte-Croix.
Im Erdgeschoss gelegen, verfügt es über einen direkten Zugang von außen durch eine Tür, die das Laden und Entladen von Waren erleichtert. Seine praktische Konfiguration ermöglicht eine optimale Raumnutzung.
Leicht zugänglich und gut gelegen, eignet sich diese Immobilie perfekt für Unternehmen, die nach...
Immobiliendetails
- Verfügbar ab
- Nach Vereinbarung



