Mischgenutztes Gebäude kaufen - 1950 Sion
Warum Sie diese Immobilie lieben werden
Anpassbare Ausstattungen inklusive
Große Werkstatt und Büroräume
Erstklassige Lage nahe Autobahn
Besichtigung vereinbaren
Besichtigung mit Gaëlle buchen
Gemischt genutztes Gebäude 1 Zimmer
Industrielle & kommerzielle Halle im Bau in Sion
Sion - Industrielle & kommerzielle Halle im Bau, Ausstattungen nach Wahl der Käufer
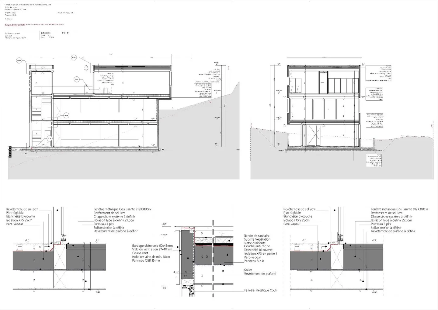
Hermès Immobilier bietet Ihnen eine industrielle Halle in der Nähe der Autobahnzugänge in einem sich schnell entwickelnden Industrie- und Handelsgebiet der Stadt SION an.
Selten zum Verkauf, wird diese große Handelsfläche auf 3 Ebenen bis Dezember 2024 wetterfest sein.
Wirtschaftsgebiete (Industriegebiete / Handwerksgebiete / Mischgebiete (ohne Wohnraum) ...
Immobiliendetails
- Verfügbar ab
- Nach Vereinbarung
- Zimmer
- 1



