1 / 17

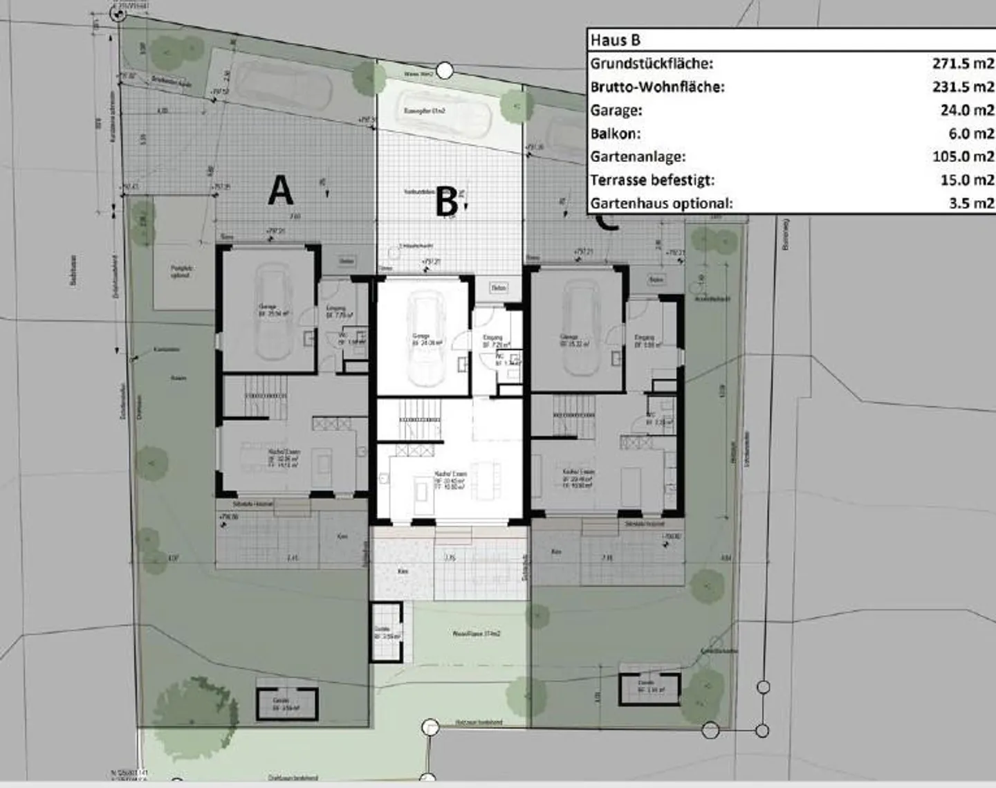
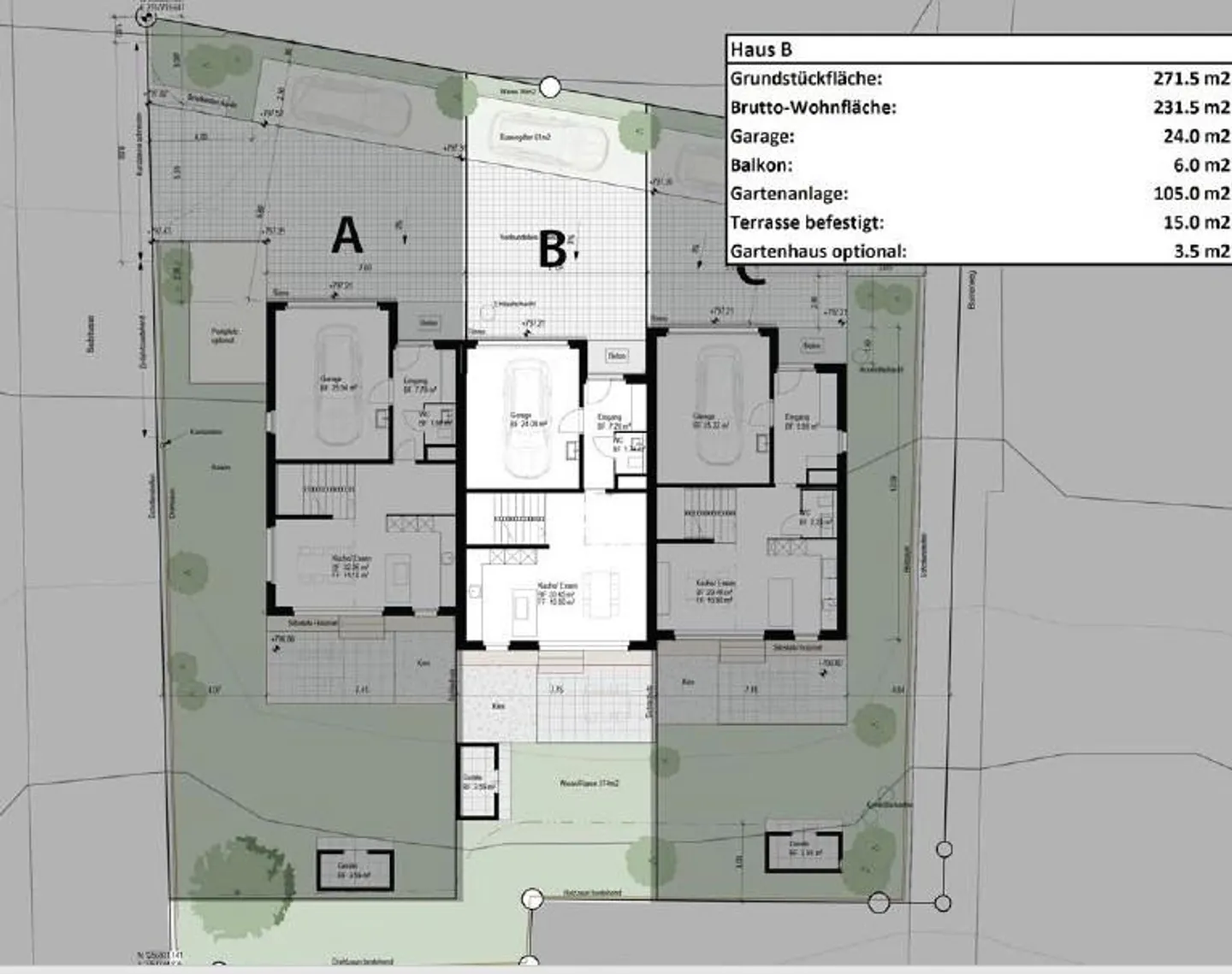
Casa singola in affitto - Badstrasse, 9410 Heiden

6.5 rooms • 231.5 m² • 271.5 m² Plot
CHF 1’350’000.-
CHF 5’832 m²

Perché amerai questa proprietà

Oasi di giardino privato

Cucina aperta moderna

Ampio soggiorno luminoso

Organizza una visita

Prenota una visita con 7 oggi!

7 Tage in der Woche
delucaimmo GmbH
Questa descrizione è stata tradotta automaticamente da Tedesco.

Occasione rara a heiden – casa familiare soleggiata con fascino

Scopri la nostra attraente e spaziosa casa a schiera di 6,5 stanze, costruita nel 2024, con un'atmosfera meridionale, giardino privato e casetta da giardino in una posizione molto tranquilla e adatta ai bambini, in una zona a 30 km/h, vicino al centro e alle scuole! - Superficie abitabile lorda 231,5 m2 - Superficie del terreno 271,5 m2 - Area di sosta idilliaca - Cucina aperta, moderna e di alta qualità con zona pranzo, con accesso al giardino - Al piano superiore: molta tranquillità e possibil...

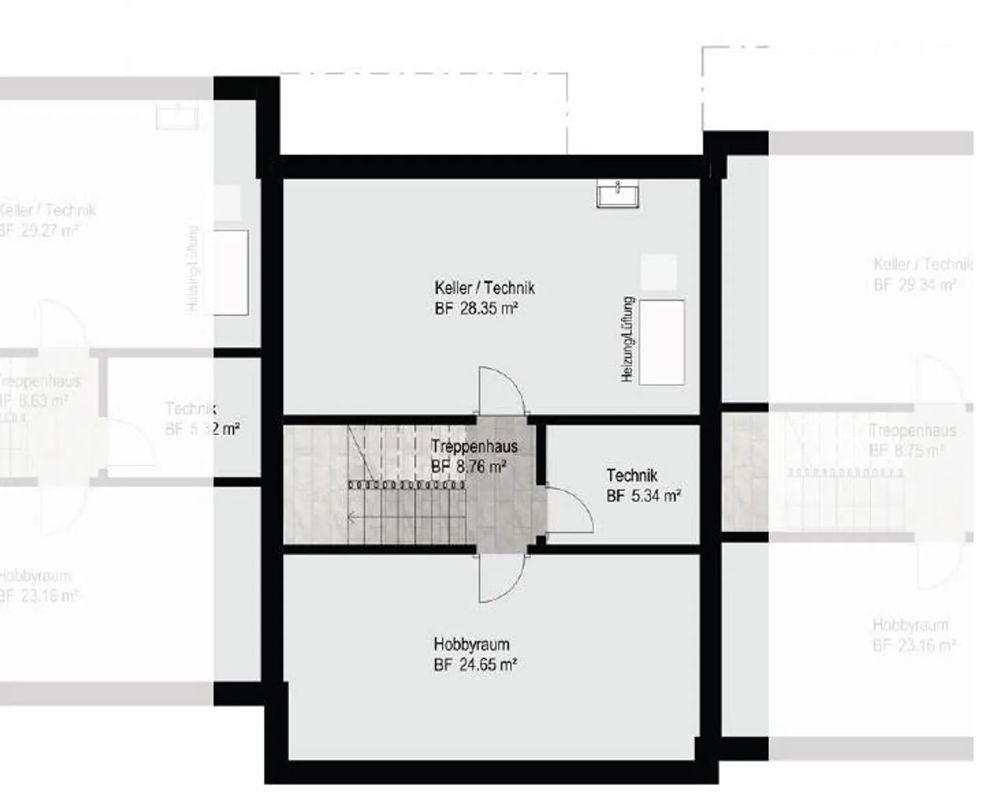
Dettagli immobile

Disponibile dal
Su accordo
Stanze
6.5
Anno di costruzione
2024
Superficie abitabile
231.5
Superficie terreno
271.5

Caratteristiche

Garage
Balcone
Parcheggio
Cantina
Certificato Minergie

Agenzia

delucaimmo GmbH
delucaimmo GmbH
Indirizzo:St. Gallen, Rehetobelstrasse, 9016
(13 reviews)

Località

Badstrasse, 9410 Heiden

Fonti