1 / 13

Casa a schiera in affitto - Route Du Moulin-Roget 7, 1237 Avully

8 rooms • 266 m² • 465 m² Plot
CHF 2’280’000.-
CHF 8’571 m²

Perché amerai questa proprietà

Fascino autentico e modernità

Giardino spazioso e terrazza

Design interno personalizzabile

Organizza una visita

Prenota una visita con Mireille oggi!

Mireille Bertolini
Froidevaux Immobilier SA
Questa descrizione è stata tradotta automaticamente da Francese.

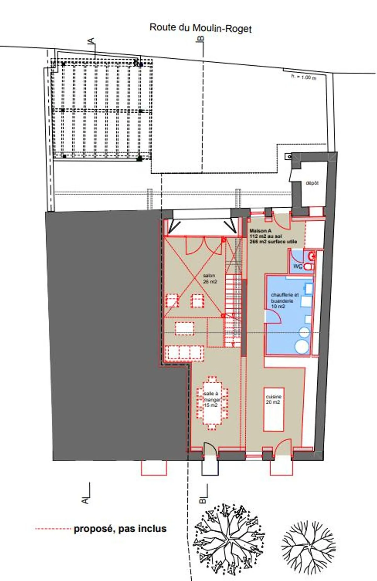
La grange de moulin roget - promozione di 2 ville contigue - lotto a

Situata nel cuore del villaggio di Avully, questa nuova promozione, presentata in collaborazione con Friedli Consulting, è il frutto della ristrutturazione di un'antica fienile. Si comporrà di due case contigue su due livelli con soffitte, conformi agli standard HPE (Alta Prestazione Energetica), in vendita su progetti.

Unendo l'autenticità del vecchio con tocchi moderni, questo progetto saprà affascinarvi con il suo ambiente tranquillo e verdeggiante.

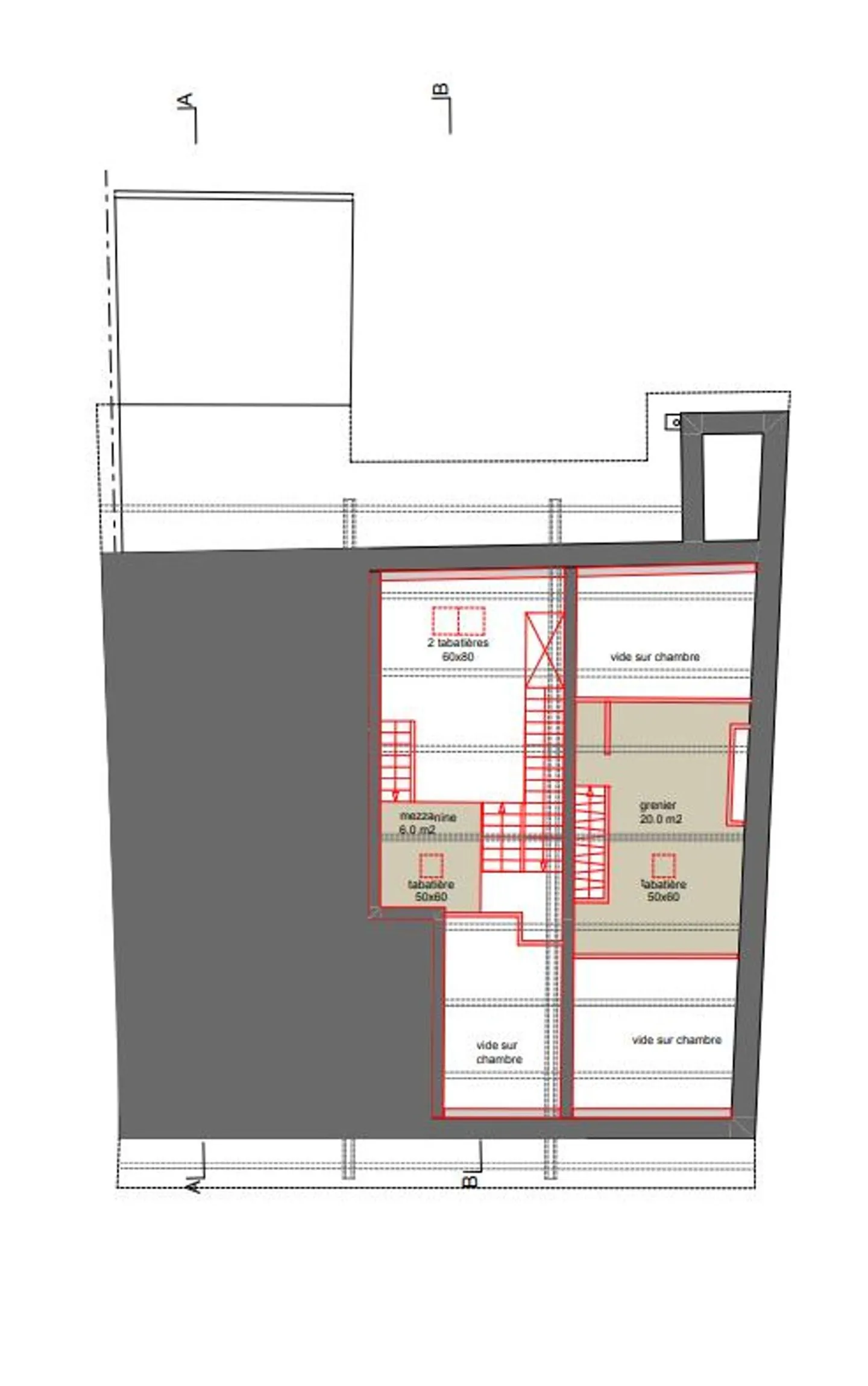
Edificata su un lotto di 465 m2, la villa A o...

Dettagli immobile

Disponibile dal
Su accordo
Stanze
8
Anno di costruzione
2026
Superficie abitabile
266
Superficie terreno
465

Caratteristiche

Parcheggio
Certificato Minergie

Agenzia

Froidevaux Immobilier SA
Froidevaux Immobilier SA
Indirizzo:Boulevard de Grancy 32, 1006, Lausanne, CH
(43 reviews)
Mireille Bertolini
Ref: 58WZ-PGA8-970

Località

Route Du Moulin-Roget 7, 1237 Avully

Fonti