Casa a schiera in vendita - Route Du Moulin-Roget, 1237 Avully
Perché amerai questa proprietà
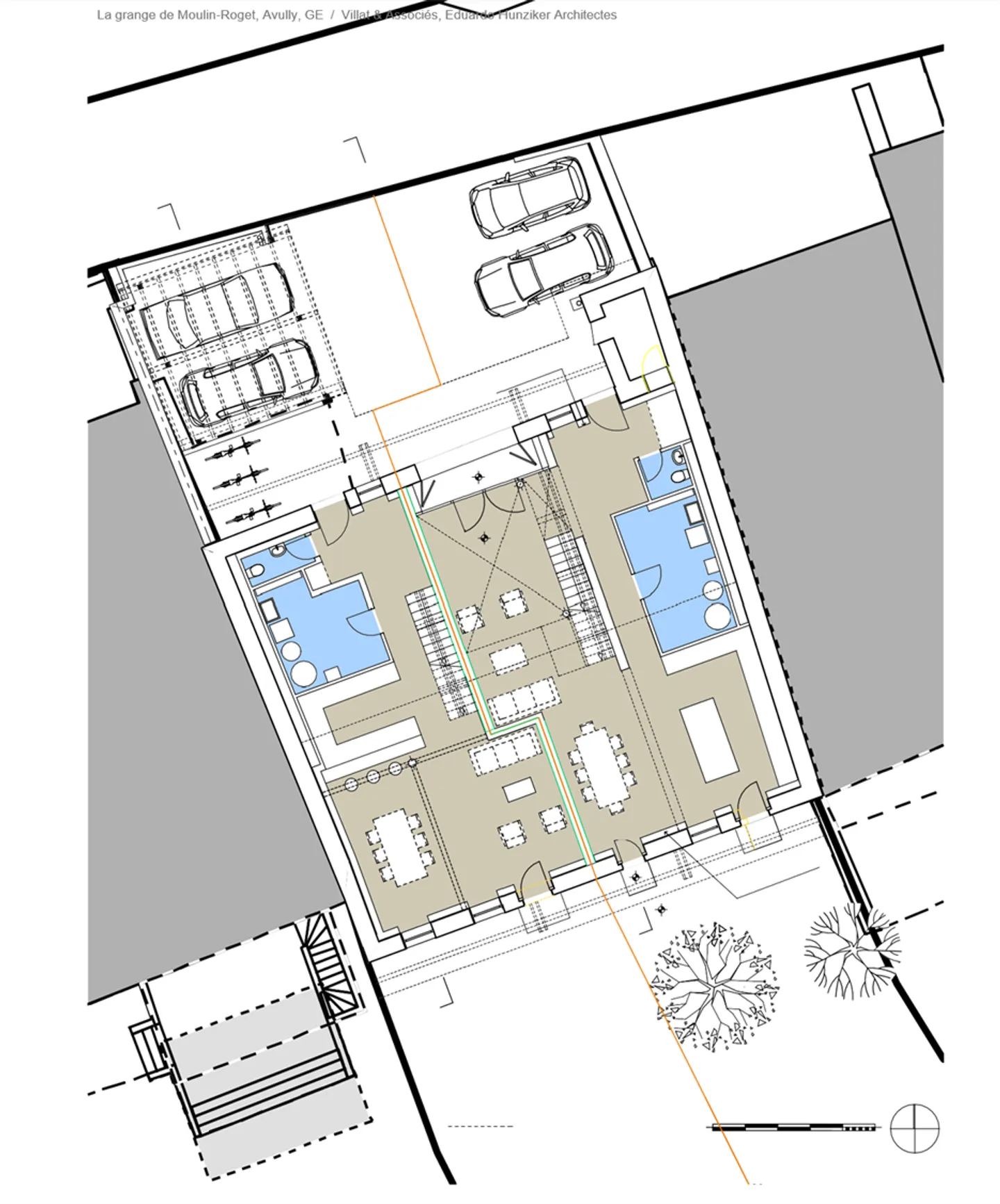
Ampio giardino di 300m²
Cucina moderna aperta
Sistema di riscaldamento ecologico
Organizza una visita
Prenota una visita con Friedli oggi!
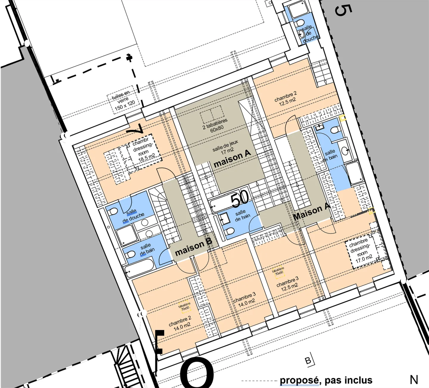
Casa a schiera 6.5 stanze
Nuovo Progetto - Casa a Schiera nel centro di Avully
Nuovo progetto di 2 case a schiera di alta qualità nel cuore del villaggio di Avully.
Avully si trova tra Cartigny e Chancy e dispone di numerosi servizi che delizieranno la vita quotidiana delle famiglie, tra cui una scuola primaria, una sala polivalente e un'area giochi, una piscina e negozi.
La Casa A offre 266m2 di spazio utile, un bel cortile con 2 posti auto coperti per i vostri veicoli e un grazioso giardino di circa 300m2.
Il lotto ha 466m...
Dettagli immobile
- Disponibile dal
- Su accordo
- Stanze
- 6
- Bagni
- 4
- Superficie abitabile
- 266 m²



