Casa singola in vendita - 6821 Rovio
Perché amerai questa proprietà
Vista panoramica mozzafiato
Ampio soggiorno
Oasi di giardino privato
Organizza una visita
Prenota una visita oggi!
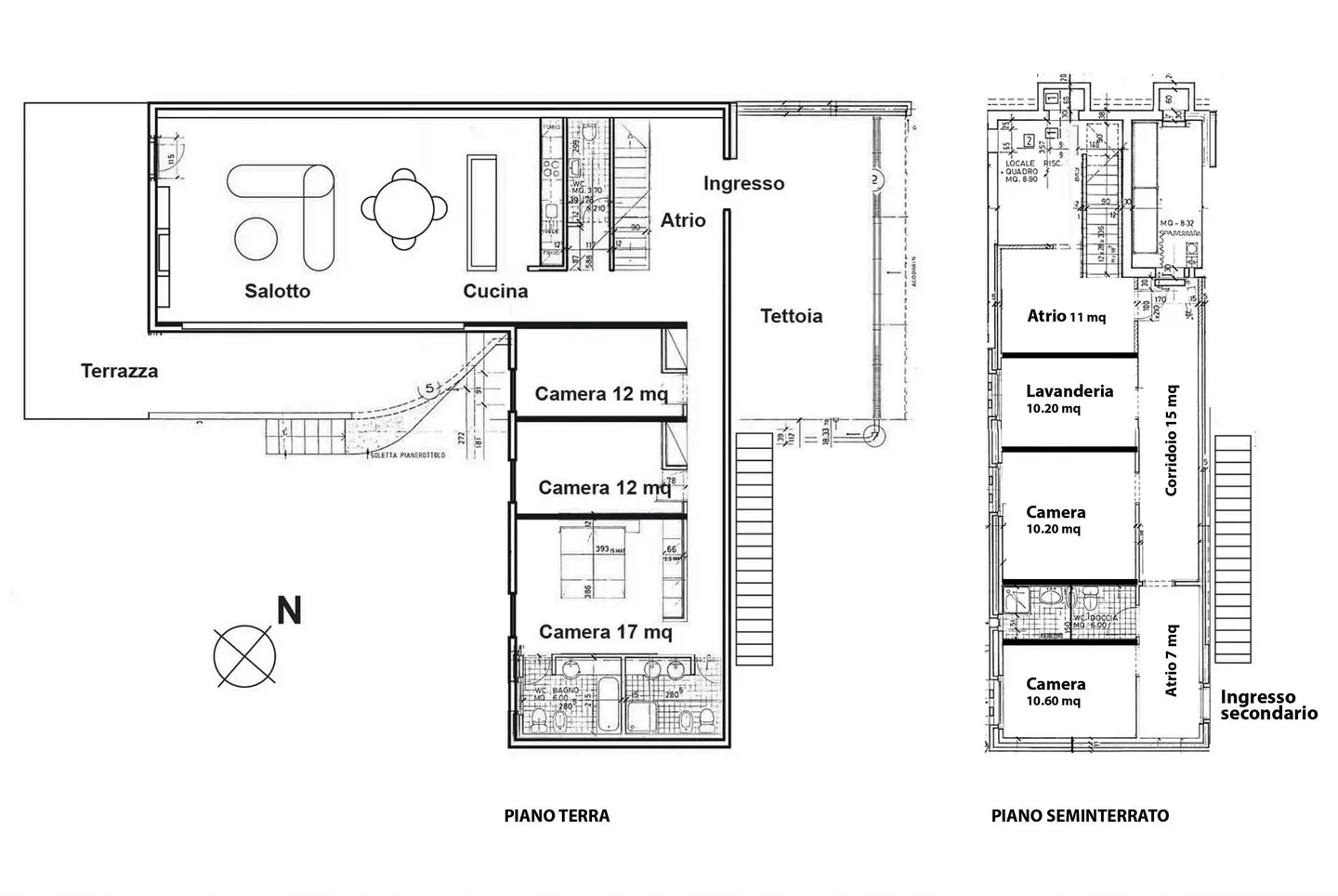
VILLA DI 250 MQ CON GIARDINO IN POSIZIONE PANORAMICA A ROVIO
Ampia e moderna villa su due livelli con due ingressi indipendenti, in posizione residenziale e con ottima esposizione solare (orientata a sud est e sud ovest).
La casa è attualmente vissuta come grande villa unifamiliare ma può essere facilmente suddivisa, creando un grande 4.5 locali al piano superiore e un bell’appartamento di 2.5 locali al piano seminterrato, con accesso privato.
Questa abitazione colpisce per il grandissimo soggiorno che ha totale privacy, con cucina a vista, e un salotto che...
Dettagli immobile
- Disponibile dal
- Su accordo
- Stanze
- 7.5
- Anno di costruzione
- 1992
- Superficie abitabile
- 232 m²
- Superficie utilizzabile
- 250 m²
- Superficie terreno
- 918 m²
- Volume dell'edificio
- 1369 m³




