Casa singola in vendita - Via Alla Costa 4, 6821 Rovio
Perché amerai questa proprietà
Vista lago mozzafiato
Ampio giardino circostante
Due posti auto esterni
Organizza una visita
Prenota una visita oggi!
Villetta panoramica completamente ristrutturata
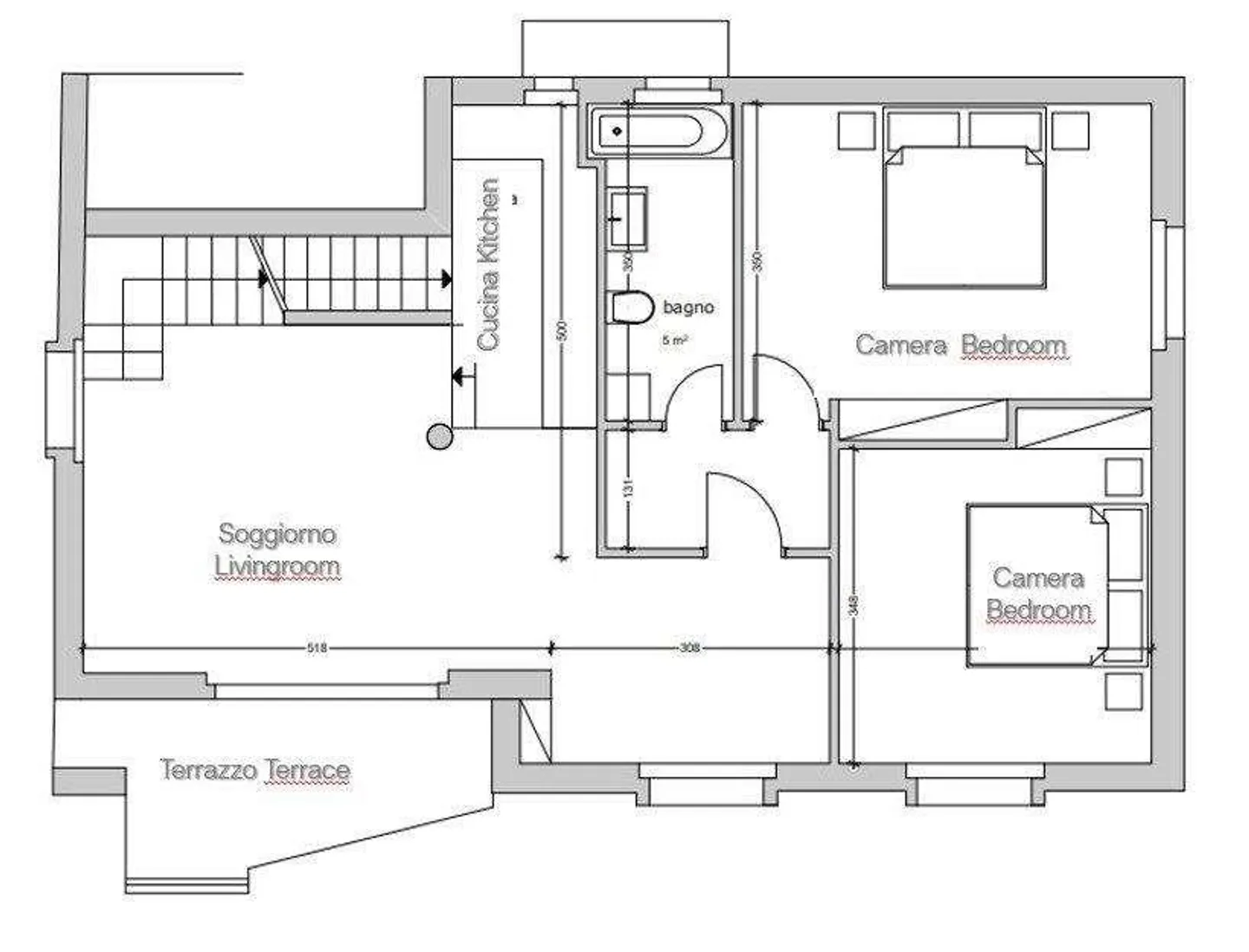
ROVIO - Casa panoramica completamente ristrutturata di 6.5 loc. 230 mq costituita al piano superiore da atrio dingresso, camera matrimoniale con bagno;
al piano terra, soggiorno, cucinotto, bagno, due camere da letto (una eventualmente unificabile al soggiorno);
al piano seminterrato, grandissimo locale adatto a diversi usi quali camera, studio, loc. hobby, ecc., spaziosa cantina di circa 20 mq, locale caldaia (nafta), grande portico.
La casa dispone di DUE posti auto esterni, un giardino circos...
Dettagli immobile
- Disponibile dal
- Su accordo
- Stanze
- 6.5
- Superficie abitabile
- 240 m²



