Casa singola in vendita - Hauptstrasse 1a, 7494 Davos Wiesen
Perché amerai questa proprietà
Spazio abitativo indipendente
Ampia area esterna
Vista mozzafiato sulle montagne
Organizza una visita
Prenota una visita con Damian oggi!
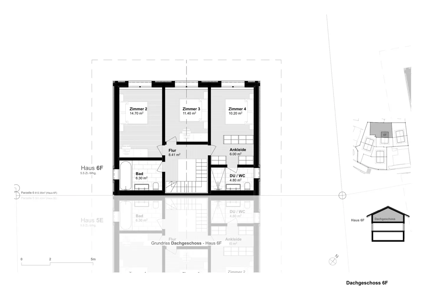
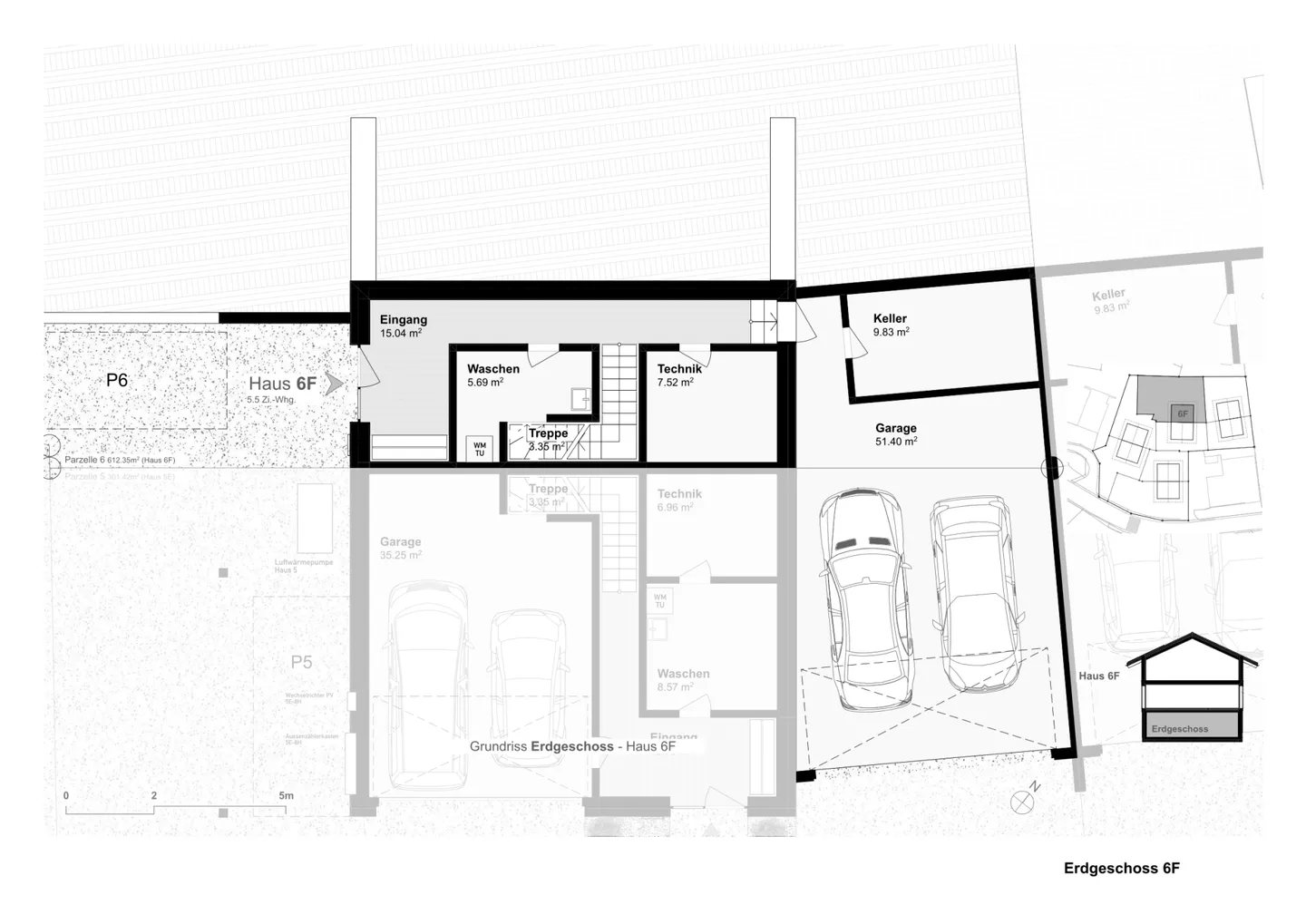
Casa bifamiliare di 5,5 stanze come residenza principale di alta qualità (6f) a davos wiesen
La residenza MARIELLA
Il concetto della residenza MARIELLA è progettato per la massima indipendenza.
Ogni casa bifamiliare è composta da due unità di 5,5 stanze ciascuna. Un'infrastruttura abitativa indipendente, ampi locali accessori e il proprio terreno con parcheggio confortevole garantiscono indipendenza e spazio per una progettazione individuale.
La residenza è composta dai tipi di casa <> (Casa 1A - 4D) e <> (Casa 5E - 8H). La costruzione della residenza sarà realizzata in fasi se...
Dettagli immobile
- Disponibile dal
- Su accordo
- Stanze
- 5.5
- Anno di costruzione
- 2026
- Superficie terreno
- 612 m²


