Casa singola in vendita - Hauptstrasse, 7494 Davos Wiesen
Perché amerai questa proprietà
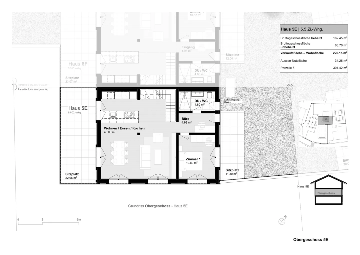
Ampio giardino privato
Struttura della casa indipendente
Parcheggio comodo incluso
Organizza una visita
Prenota una visita oggi!
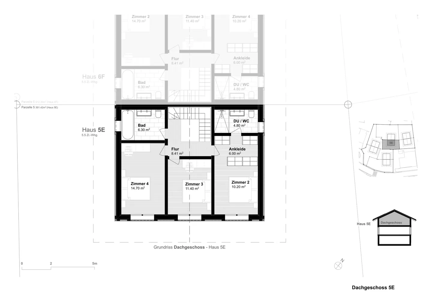
Casa unifamiliare di 5,5 stanze come residenza principale di alta qualità a davos wiesen
Il concetto della residenza MARIELLA è progettato per la massima indipendenza.
Ogni casa bifamiliare è composta da due unità di 5,5 stanze ciascuna. Un'infrastruttura abitativa indipendente, ampi locali accessori e il proprio terreno con parcheggio confortevole garantiscono indipendenza e spazio per una progettazione individuale.
La residenza è composta dai tipi di casa <> (Casa 1A - 4D) e <> (Casa 5E - 8H). La costruzione della residenza sarà realizzata in fasi secondo lo stato delle ...
Dettagli immobile
- Disponibile dal
- Su accordo
- Stanze
- 5.5
- Bagni
- 3
- Anno di costruzione
- 2026
- Superficie terreno
- 301 m²


