Chalet in vendita - Route Du Sergnou 179, 1978 Lens
Perché amerai questa proprietà
Vista panoramica mozzafiato
Giardino privato con terrazza
Vicino ai sentieri escursionistici
Organizza una visita
Prenota una visita con GENOUD oggi!
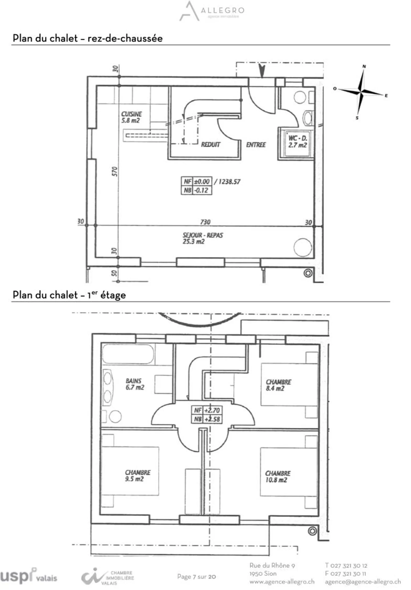
Chalet 4.5 stanze
Lens, affascinante chalet a schiera di 105 m2 con terrazza, giardino privato, posto auto e garage box
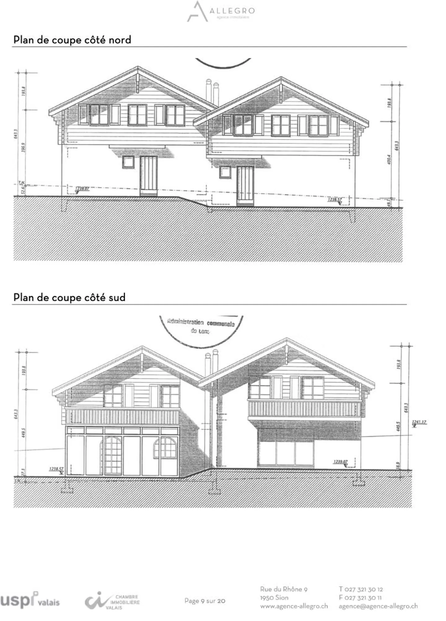
Costruito nel 2002, questo affascinante chalet a schiera di 4.5 stanze si trova su un lotto di 358 m2 in via Sergnou 179a a Pra Riond, nel Comune di Lens, a un'altitudine di circa 1.245 m.
Situato in un quartiere residenziale tranquillo e verde, questo chalet offre un ambiente pacifico con una vista panoramica eccezionale sulle Alpi vallesane garantita a lungo termine.
Il lotto dispone di un giardi...
Dettagli immobile
- Disponibile dal
- Su accordo
- Stanze
- 4.5
- Bagni
- 2
- Superficie abitabile
- 105 m²



