Da costruire, villa familiare di 5,5 stanze in un ambiente tranquillo
Perché amerai questa proprietà
Alti standard di efficienza energetica
Ampio giardino e terrazza
Posizione soleggiata ideale
Organizza una visita
Prenota una visita con Dominique oggi!
ESCLUSIVITÀ
**
LES ECRINS DE NOËS - Villa A
**
In vendita su progetti, villa familiare ecologicamente responsabile su un terreno idealmente situato a ovest del villaggio di Noës.
La tua costruzione sarà realizzata secondo gli standard del certificato "CECB A/A Neubau".
Questa efficienza energetica è raggiunta grazie a un'ottima isolamento periferico, vetri tripli, una moderna pompa di calore aria-acqua, ventilazione a doppio flusso con scambiatore di calore e un impianto solare con una capacità d...
Dettagli immobile
- Disponibile dal
- Su accordo
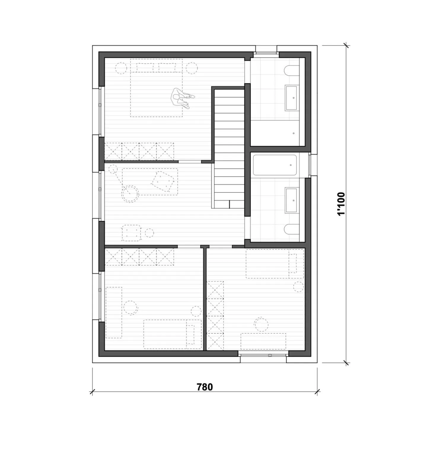
- Stanze
- 5.5
- Anno di costruzione
- 2026
- Superficie abitabile
- 170 m²
- Superficie terreno
- 376 m²




