Appartamento ammobiliato in vendita - Via Massagno, 6900 Lugano
Perché amerai questa proprietà
Interni finemente ristrutturati
Zona giorno open-space
Balcone con vista spettacolare
Organizza una visita
Prenota una visita oggi!
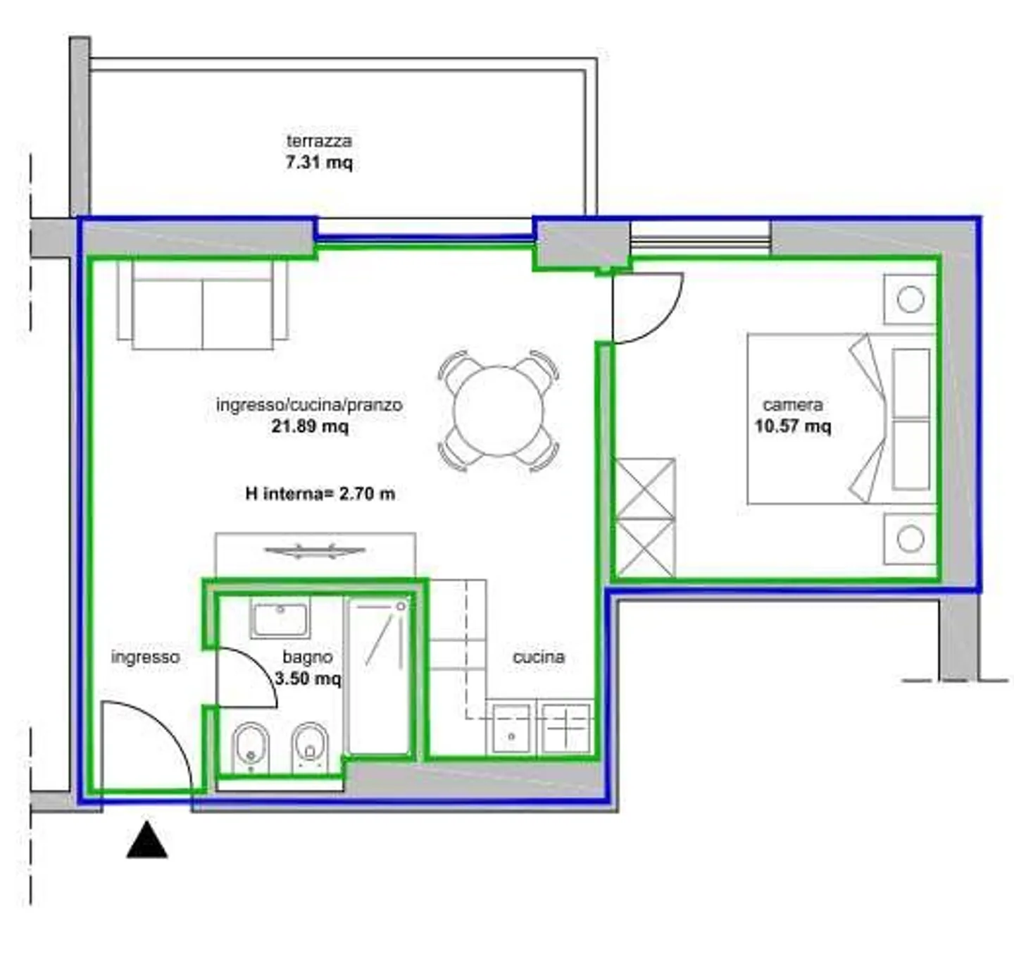
Massagno, incantevole 2,5 locali arredato
Comune del canton Ticino, distretto Lugano, situato a nord ovest dell'agglomerato urbano di Lugano, comprendente l'antica frazione di Gerso e, dal 1804, parte dell'ex comune di Rovello.
Il territorio collinare di Massagno è abitato fin dal neolitico e la scoperta di varie tombe di epoca romana confermano la presenza di popolazioni anche nei periodi successivi.
È il secondo centro per popolazione del distretto di Lugano e uno dei maggiori del Cantone.
L'incantevole appartamento al 4. piano che pro...
Dettagli immobile
- Disponibile dal
- Su accordo
- Stanze
- 2.5
- Superficie abitabile
- 44 m²



