Attico in vendita - Blaieweg, 5070 Frick
Perché amerai questa proprietà
Stupende finestre panoramiche
Terrazza spaziosa con vista
Posizione centrale vicino alla stazione
Organizza una visita
Prenota una visita con Rebmann oggi!
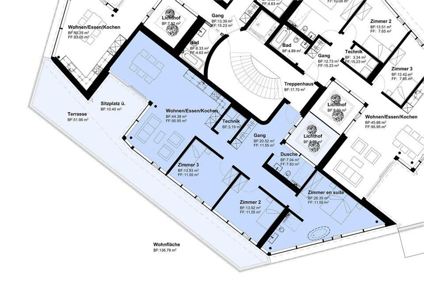
"blaie": per i buongustai - appartamento attico vicino alla stazione
Sei un pendolare e stai cercando un appartamento vicino alla stazione? Inoltre, ti interessa un'architettura contemporanea, spazi ampi e luminosi, così come molta privacy? A Frick è attualmente in costruzione il complesso "Blaie", che soddisfa tutti questi requisiti e altro ancora. È prevista una costruzione architettonicamente convincente con diversi appartamenti, che coprono perfettamente diverse esigenze (abitative) per tutte le categorie di età.
Dati principali:
- Architettura moderna ed elega...
Dettagli immobile
- Disponibile dal
- Su accordo
- Stanze
- 4.5
- Anno di costruzione
- 2026
- Superficie abitabile
- 129 m²



