Appartamento in vendita - 6992 Vernate
Perché amerai questa proprietà
Stupenda terrazza di 212 mq
Residenza esclusiva con piscina
Sauna e lavanderia privati
Organizza una visita
Prenota una visita oggi!
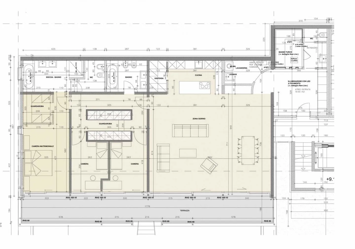
Enorme 4.5 vista lago in residenza con piscina a vernate
Meraviglioso e moderno appartamento 4.5 locali di circa 200 mq abitabili, inserito in residence di lusso con piscina e dotato di enorme terrazza panoramica di 212 mq in parte coperta e dalla quale si gode di una vista lago unica.
La residenza nella quale è inserito comprende un totale di sole 9 unità esclusive e mette a disposizione una bellissima piscina esterna, posizionata in un’area comune con vista panoramica e solarium.
Tutte le camere e le aree esterne hanno una splendida vista panoramica s...
Dettagli immobile
- Disponibile dal
- Su accordo
- Stanze
- 4.5
- Anno di costruzione
- 2013
- Superficie abitabile
- 224 m²
- Superficie utilizzabile
- 224 m²
- Piano
- 1°




