Appartamento in vendita - 6982 Agno
Perché amerai questa proprietà
Cucina moderna con elettrodomestici
Ampia terrazza per relax
Vicino ai mezzi pubblici
Organizza una visita
Prenota una visita oggi!
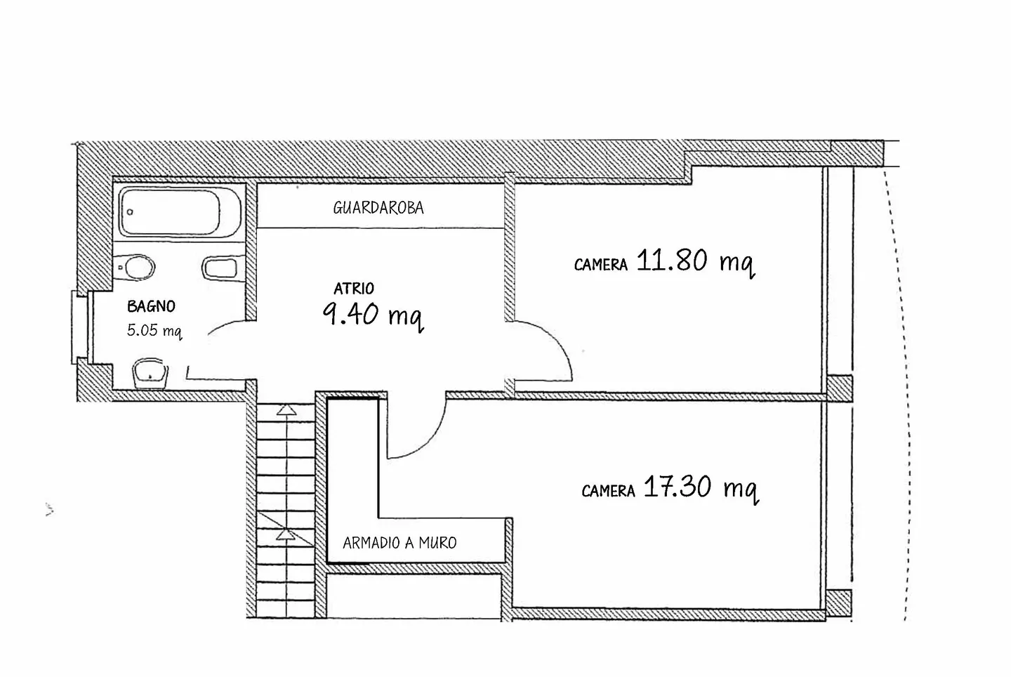
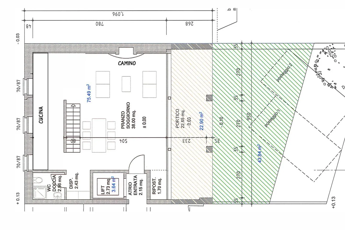
Spazioso duplex 3.5 locali con giardino privato ad agno
Ampio appartamento duplex 3.5 locali di circa 145 mq complessivi, inserito in edificio completamente ristrutturato nel 2005, con giardino di proprietà di 44 mq ca. e ampia terrazza coperta, nelle immediate vicinanze di tutti i principali servizi.
L’appartamento è composto da ingresso e grande zona living, con parete a vetrate e una scala moderna di design centrale che sale al piano superiore.
Al piano terra si trova una moderna cucina di ampie dimensioni, sviluppata in continui...
Dettagli immobile
- Disponibile dal
- Su accordo
- Stanze
- 3.5
- Anno di costruzione
- 2005
- Superficie abitabile
- 145 m²
- Superficie utilizzabile
- 145 m²




