Appartamento in vendita - 6952 Canobbio
Perché amerai questa proprietà
Ideale per uso magazzino
Grande entrata per veicoli
Posizione strategica vicino ai servizi
Organizza una visita
Prenota una visita oggi!
Spazioso 2.5 locali ad uso commerciale in zona cornaredo
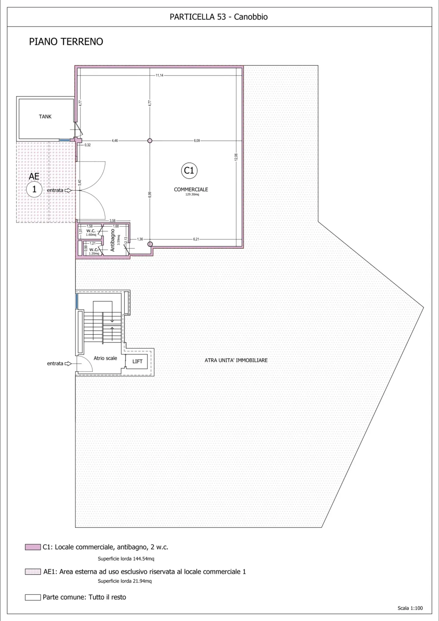
A Canobbio, in una zona pianeggiante e ben servita, proponiamo un ampio spazio commerciale di ca. 135 mq lordi al piano terra di una palazzina dei primi anni ’90 composta da 22 unità, ben tenuta e servita da ascensore.
Ideale per essere utilizzato come magazzino.
L’immobile è disposto come segue:
Comoda entrata con un grande portone perfetto per far entrare anche furgoni alti ed un bagno di servizio, attualmente l’immobile e affittato.
Il riscaldamento a gasolio con erogazione a bocchette, gli infis...
Dettagli immobile
- Disponibile dal
- 17.09.2025
- Stanze
- 2.5
- Anno di costruzione
- 1990
- Superficie abitabile
- 130 m²
- Superficie utilizzabile
- 135 m²



