Appartamento in vendita - 6952 Canobbio
Perché amerai questa proprietà
Ideale per uso magazzino
Posizione strategica vicino al tunnel
Inquilino attuale fino al 2027
Organizza una visita
Prenota una visita oggi!
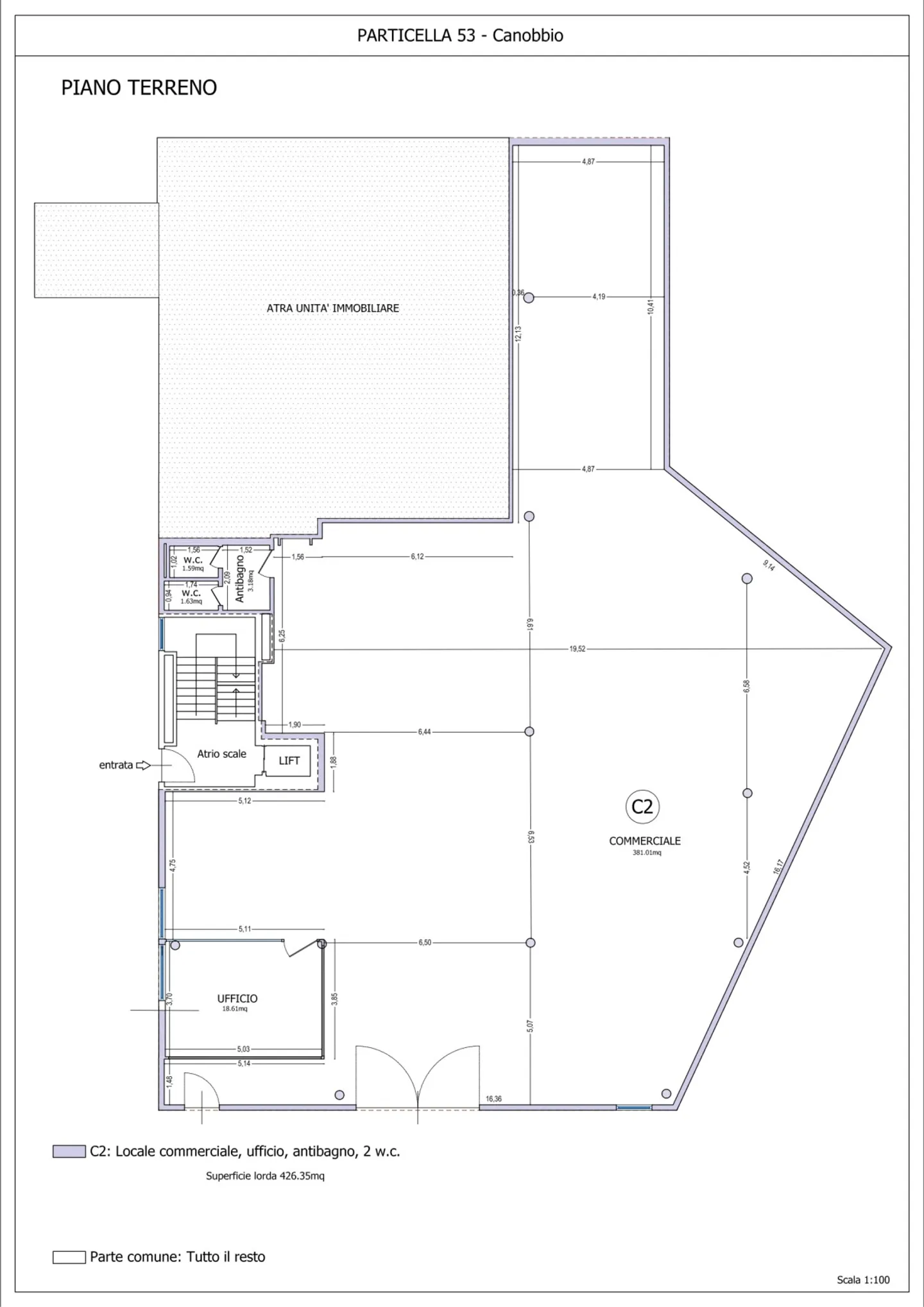
Strategico stabile commerciale di 400 mq in zona cornaredo
A Canobbio, in una zona pianeggiante e ben servita, proponiamo uno stabile commerciale di ca 400 mq lordi al piano terra di una palazzina dei primi anni ’90 composta di 22 appartamenti, ben tenuta e servita da ascensore.
PREZZO NON TRATTABILE!
Ideale per essere utilizzato come magazzino. Oggi nello stabile abbiamo un gommista con contratto di altri 2 anni fino a Maggio 2027.
L’immobile è disposto come segue:
Comoda entrata con un grande portone perfetto per far entrare anche furgoni alti ed un bagno...
Dettagli immobile
- Disponibile dal
- 17.09.2025
- Stanze
- 2.5
- Anno di costruzione
- 1990
- Superficie abitabile
- 380 m²
- Superficie utilizzabile
- 400 m²




