Appartamento in vendita - 6862 Rancate
Perché amerai questa proprietà
Interni completamente ristrutturati
Accesso con ascensore disponibile
Vicino ai servizi urbani
Organizza una visita
Prenota una visita con Caterina oggi!
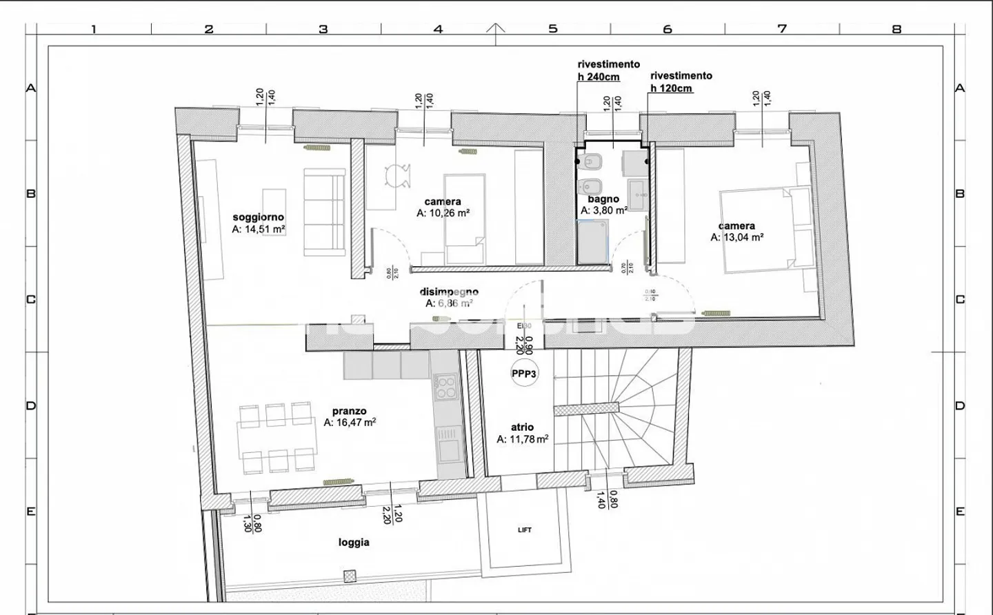
Rancate, 3,5 stanze, 2° piano con balcone e servizi nelle vicinanze
A Rancate, in vendita, offriamo un bellissimo appartamento di 3,5 stanze che è stato completamente ristrutturato. Grazie alla sua posizione strategica, offre un perfetto equilibrio tra un'atmosfera residenziale tranquilla e l'accesso ai principali servizi urbani.
Ideale come residenza principale o come investimento stabile e redditizio nel mercato immobiliare.
L'appartamento al secondo piano è composto da: ingresso nel corridoio, soggiorno, grande cucina e terrazza. La zona notte è composta da...
Dettagli immobile
- Disponibile dal
- Su accordo
- Anno di costruzione
- 2015
- Superficie abitabile
- 85 m²
- Piano
- 2°



