Appartamento in vendita - 6862 Rancate
Perché amerai questa proprietà
Interni completamente ristrutturati
Accesso con ascensore disponibile
Vicino ai servizi urbani
Organizza una visita
Prenota una visita con Caterina oggi!
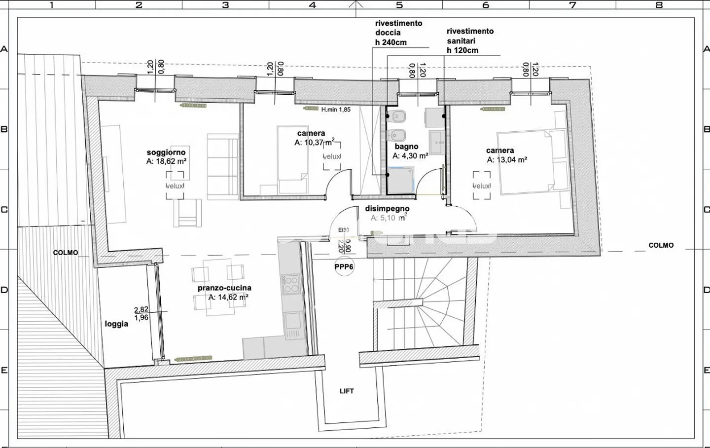
Rancate, attico di 3.5 locali con balcone e servizi nelle vicinanze
In vendita a Rancate, proponiamo un bellissimo attico di 3,5 locali, completamente ristrutturato. Grazie alla sua posizione strategica, offre un perfetto equilibrio tra un'atmosfera residenziale tranquilla e l'accesso ai principali servizi urbani.
Ideale come residenza principale o come investimento stabile e redditizio nel mercato immobiliare.
L'appartamento, situato al primo piano, è composto da: ingresso nel disimpegno, soggiorno, ampia cucina e terrazza. La zona notte è composta da una cam...
Dettagli immobile
- Disponibile dal
- Su accordo
- Anno di costruzione
- 2015
- Superficie abitabile
- 85 m²
- Piano
- 3°



