Appartamento in vendita - Via Spendas 4, 7031 Laax GR
Perché amerai questa proprietà
Posizione centrale vicino ai trasporti
Potenziale di ristrutturazione
Include spazio cantina privato
Organizza una visita
Prenota una visita con Stefan oggi!
Locali espandibili per un appartamento vacanze di 2,5 stanze in una posizione centrale
Locali espandibili per un appartamento vacanze
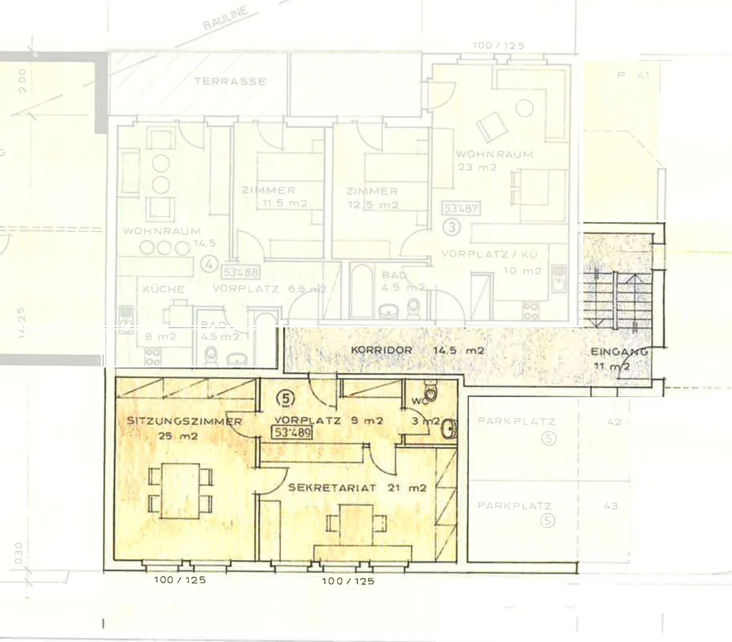
L'edificio plurifamiliare con sette unità StWEG è stato costruito nel 1992 e attaccato direttamente all'edificio esistente dell'Hotel Seehof. La proprietà comprende 3 piani residenziali e un seminterrato completo con locali accessori e un garage per auto. Sul lato nord si trova un'ampia area che offre posti auto all'aperto.
I locali ufficio esistenti con una sala riunioni (25 m2), un segretariato (21 m2), un'area d'ingresso con guardaroba e corridoio ...
Dettagli immobile
- Disponibile dal
- Su accordo
- Stanze
- 2.5
- Anno di costruzione
- 1992
- Superficie abitabile
- 58 m²
- Superficie utilizzabile
- 63 m²
- Superficie terreno
- 1739 m²
- Piano
- 1°
- Piani dell'edificio
- 3


