Appartamento in vendita - 1872 Troistorrents
Perché amerai questa proprietà
Vista mozzafiato sulle montagne
Già affittato per reddito
Atmosfera accogliente con stufa
Organizza una visita
Prenota una visita oggi!
Appartamento di 3,5 locali in un affascinante chalet e già affittato!
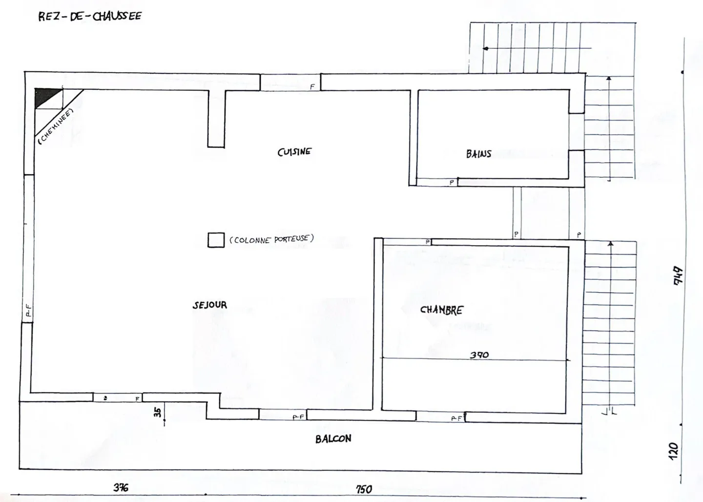
Per investitori. Appartamento di 3,5 locali con una vista molto bella! Questo appartamento si trova in un magnifico chalet con 2 unità, in un contesto verde con una vista superba sulla pianura e sulle montagne.
Questa proprietà è ideale per un investitore, l'appartamento è già affittato.
L'appartamento si trova al piano superiore e si compone come segue:
* ingresso
* cucina aperta sul soggiorno con una stufa a legna e accesso al balcone
* 2 bagni/WC
* due camere da letto
Una lavanderia comune si tr...
Dettagli immobile
- Disponibile dal
- Su accordo
- Stanze
- 3.5
- Anno di costruzione
- 1998
- Superficie abitabile
- 98 m²
- Piano
- 1°




