Appartamento in vendita - Untere Bahnhofstrasse 12, 7402 Bonaduz
Perché amerai questa proprietà
Vista mozzafiato e libera
Ampio soggiorno open space
Finiture di alta qualità
Organizza una visita
Prenota una visita con Giubbini oggi!
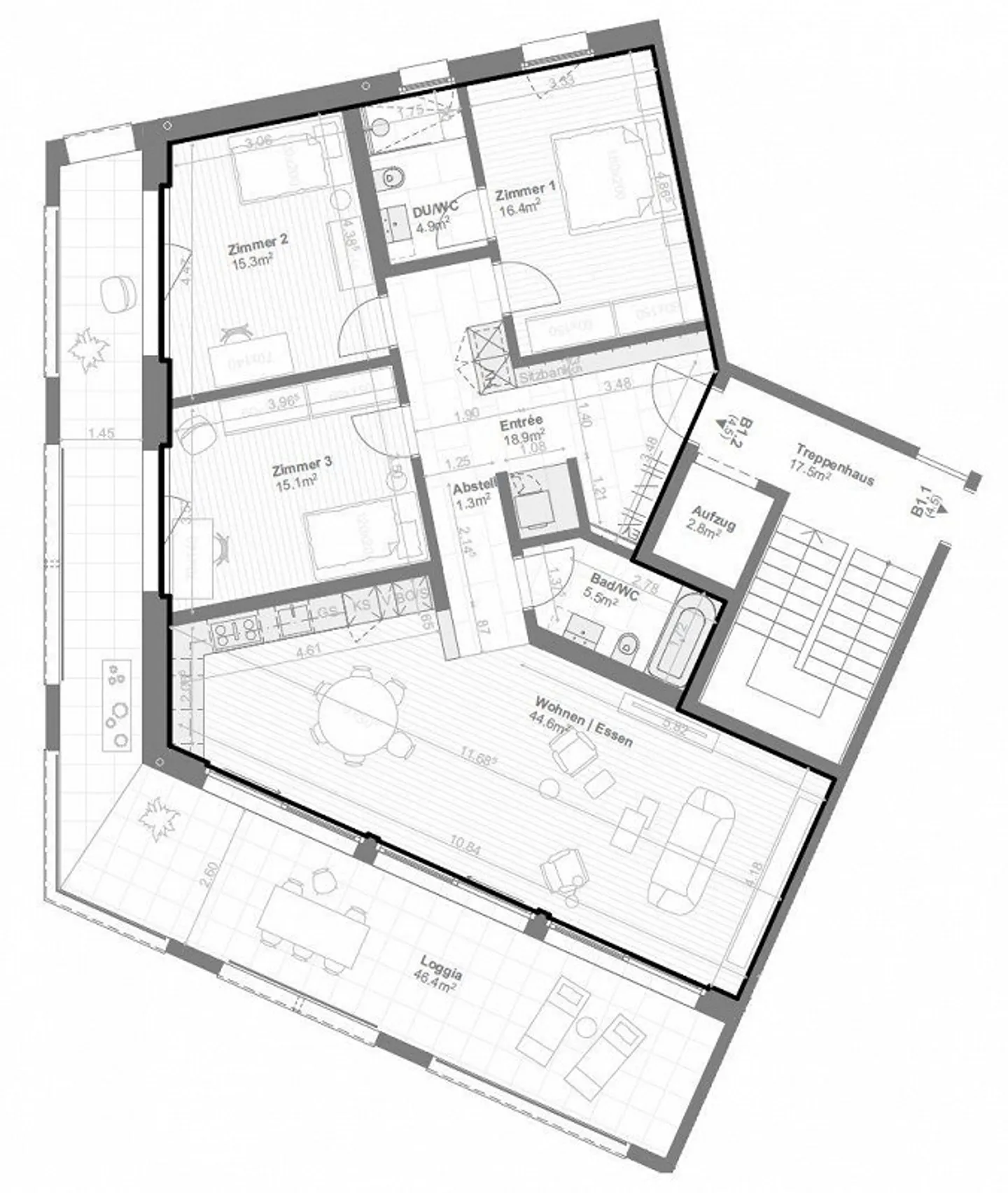
B1.2 | nuovo appartamento esclusivo con vista fantastica
Nel cuore di Bonaduz, stanno nascendo appartamenti esclusivi vicino alla stazione ferroviaria.
La posizione residenziale combina i vantaggi di una posizione centrale presso la stazione ferroviaria con la tranquillità di un'area che è in gran parte alleviata dal traffico individuale.
Le case sono orientate a sud-ovest e offrono viste pittoresche non ostacolate e una straordinaria esposizione al sole.
L'alta qualità e il design senza tempo degli interni contribuiscono all'atmosfera speciale dell'appa...
Dettagli immobile
- Disponibile dal
- Su accordo
- Stanze
- 4.5
- Anno di costruzione
- 2025
- Superficie abitabile
- 125 m²
- Piano
- 1°
- Piani dell'edificio
- 5



