Attico in vendita - Untere Bahnhofstrasse 12, 7402 Bonaduz
Perché amerai questa proprietà
Vista panoramica mozzafiato
Ampio soggiorno open space
Cucina moderna di alta gamma
Organizza una visita
Prenota una visita con Giubbini oggi!
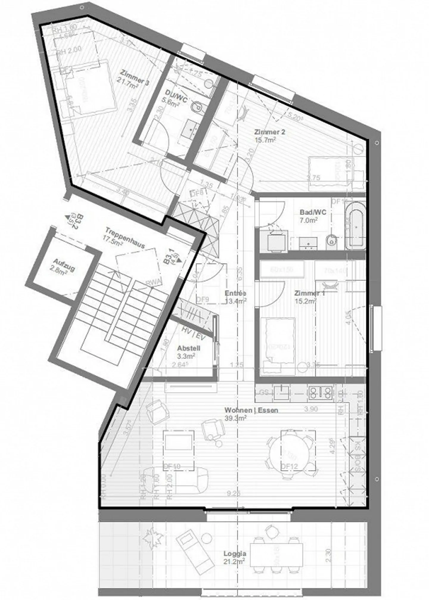
B3.1 | nuovo attico esclusivo con vista fantastica
Nel cuore di Bonaduz, stanno nascendo condomini esclusivi vicino alla stazione ferroviaria.
La posizione residenziale combina i vantaggi di una posizione centrale presso la stazione ferroviaria con la tranquillità di un'area che è in gran parte sollevata dal traffico individuale.
Le case sono orientate a sud-ovest e offrono viste pittoresche non ostruite e una straordinaria esposizione al sole.
Le soffitte inclinate sono una caratteristica distintiva di questo appartamento e conferiscono alle stanz...
Dettagli immobile
- Disponibile dal
- Su accordo
- Stanze
- 4.5
- Anno di costruzione
- 2025
- Superficie abitabile
- 121 m²
- Piano
- 9°
- Piani dell'edificio
- 5



