

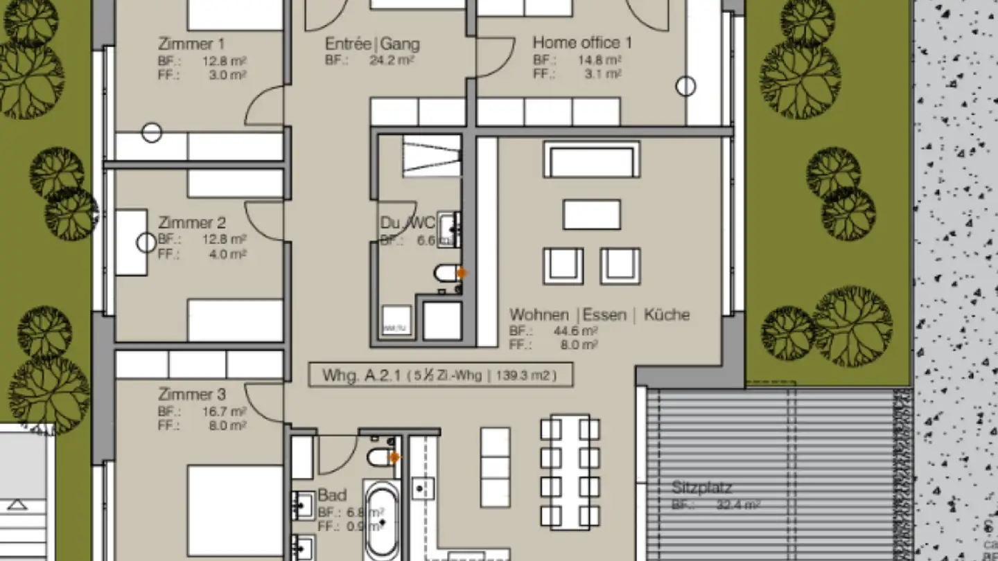
Sfoglia tutti gli annunci di appartamenti, attici e duplex in vendita a Schönengrund (9105), e perfeziona la tua ricerca tra 7 offerte.

Attualmente ci sono 4 appartamenti in vendita a Schönengrund (9105). Il 75% degli appartamenti (3) attualmente sul mercato sono online da più di 3 mesi.
Il prezzo medio di un appartamento attualmente in vendita è di CHF 487’060. Il prezzo di vendita dell' 80% degli alloggi sul mercato è compreso tra CHF 232’279 e CHF 900’080. Il prezzo medio al mq a Schönengrund (9105) è di CHF 4’595.