

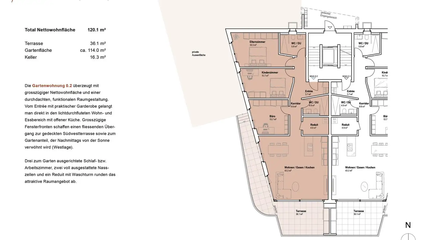
Sfoglia tutti gli annunci di appartamenti di 4 locali in vendita a Wil ZH (8196)

Il prezzo medio di un quadrilocale attualmente in vendita è di CHF 1’048’938. Il prezzo di vendita dell' 80% degli alloggi sul mercato è compreso tra CHF 621’936 e CHF 2’088’592. Il prezzo medio al mq a Wil ZH (8196) è di CHF 7’451.