

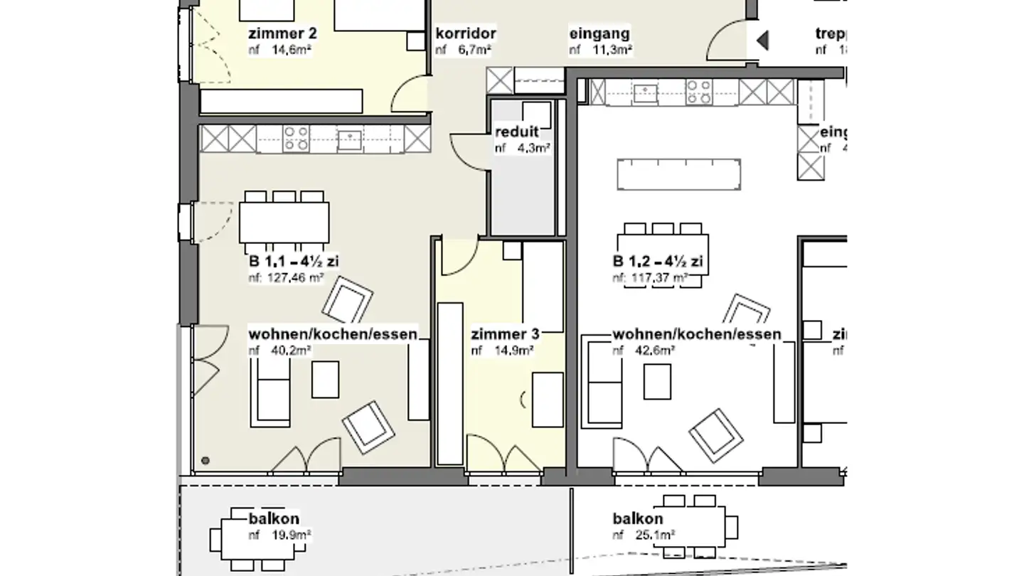
Sfoglia tutti gli annunci di appartamenti di 4 locali in vendita a Lugnorre (1789), e perfeziona la tua ricerca tra 5 offerte

Attualmente ci sono 7 quadrilocali in vendita a Lugnorre (1789). Il 14% degli quadrilocali (1) attualmente sul mercato sono online da più di 3 mesi.
Il prezzo medio di un quadrilocale attualmente in vendita è di CHF 1’421’787. Il prezzo di vendita dell' 80% degli alloggi sul mercato è compreso tra CHF 905’816 e CHF 2’132’680. Il prezzo medio al mq a Lugnorre (1789) è di CHF 7’822.