1 / 8

Spazio ufficio in affitto - Neuhofstrasse 8, 6340 Baar

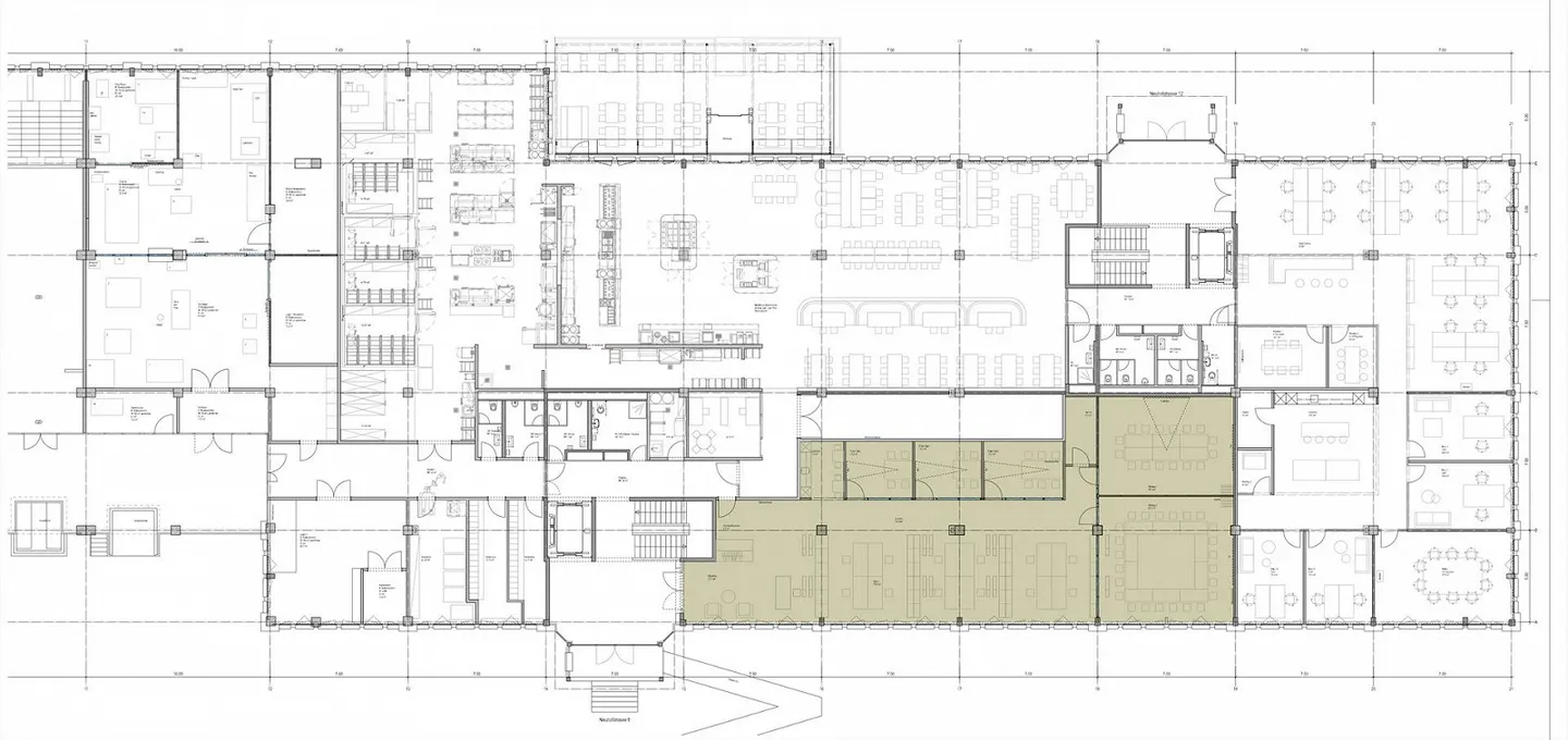
Piano terra
CHF 7’770.-
-

Perché amerai questa proprietà

Ristrutturato con comfort moderni

Ristorante interno con 140 posti

Ottime connessioni di trasporto

Organizza una visita

Prenota una visita con Daniel oggi!

Daniel Selebam
Alfred Müller AG
Questa descrizione è stata tradotta automaticamente da Tedesco.

Pronto per la tua attività - uffici completamente attrezzati

L'edificio per uffici in Neuhofstrasse 8/12 a Baar, costruito nel 1989, con la sua distintiva facciata in metallo bronzo ha subito una completa ristrutturazione interna.

La ristrutturazione dell'edificio ha incluso la modernizzazione degli ingressi e delle scale, nonché dei servizi igienici, dove sono state installate anche ulteriori toilette e docce per disabili. Un sistema di ventilazione e raffreddamento centrale garantisce un lavoro confortevole e tranquillo in tutti gli spazi ufficio durante...

Dettagli immobile

Disponibile dal
Su accordo
Anno di costruzione
1989
Anno di ristrutturazione
2018

Caratteristiche

Garage
Parcheggio
Ascensore
Accessibile ai disabili

Agenzia

Alfred Müller AG
Indirizzo:Baar, Neuhofstrasse 10, 6340
Ref: Li1723.2005.sed

Località

Neuhofstrasse 8, 6340 Baar

Fonti