Spazio ufficio in affitto - Bahnhofstrasse 7, 9470 Buchs SG
Perché amerai questa proprietà
Accesso diretto dal garage
Vicino ai mezzi pubblici
Pronto per l'uso immediato
Organizza una visita
Prenota una visita con Privera oggi!
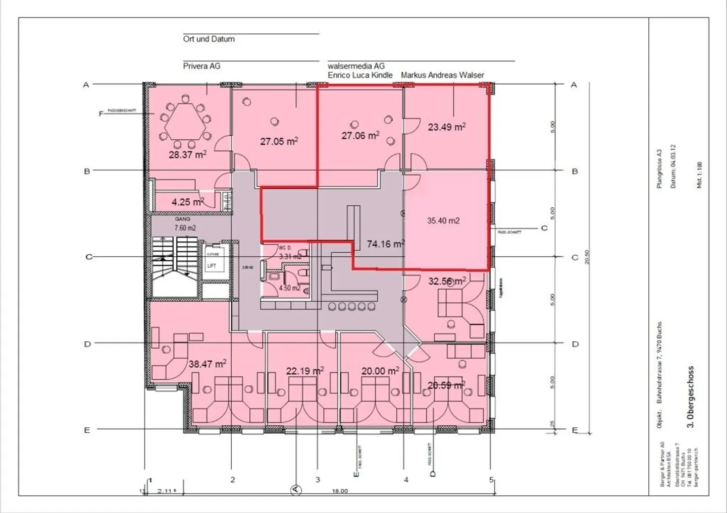
Proponiamo in affitto spazi per uffici luminosi e tranquilli di 86m2 nel cuore della città di Buchs, su appuntamento.
Assicurati il comfort a lungo termine in un'atmosfera curata per un lavoro efficace. Gli spazi sono particolarmente adatti per uffici. I piani sono accessibili direttamente dal garage sotterraneo dell'edificio tramite ascensori e scale.
L'edificio residenziale e commerciale è facilmente e comodamente raggiungibile con i mezzi pubblici e in auto. L'accesso all'autostrada è raggiun...
Ripartizione dei costi
- Affitto netto
- CHF 1’390
- Costi aggiuntivi
- CHF 240
- Totale delle locazioni
- CHF 1’390
Dettagli immobile
- Disponibile dal
- Su accordo
- Servizi igienici
- 1
- Superficie abitabile
- 86 m²
- Superficie utilizzabile
- 86 m²



