Commerciale in affitto - Alte Lyss-Strasse 4, 3270 Aarberg
Perché amerai questa proprietà
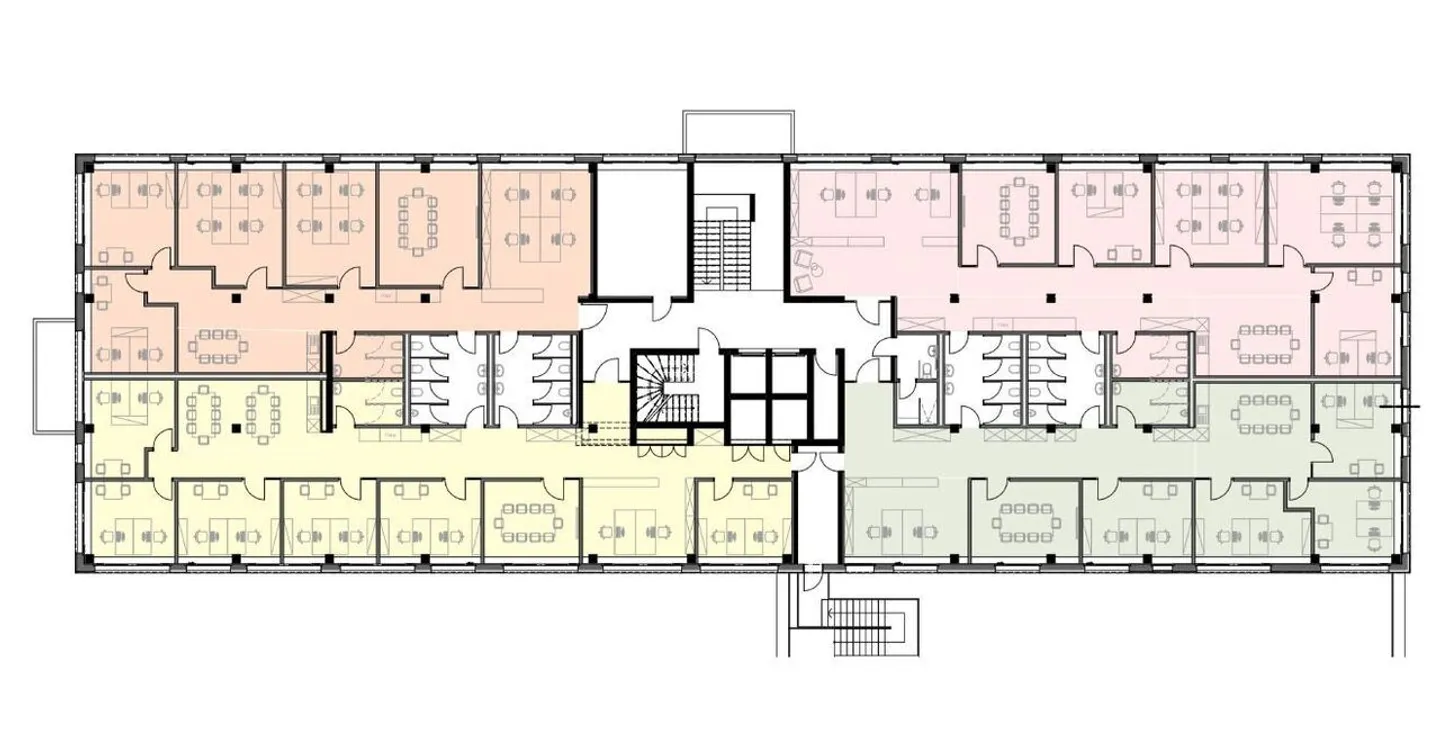
Layout flessibile di 800 m²
Costruzione di alta qualità
Opzioni di design personalizzabili
Organizza una visita
Prenota una visita con Larissa oggi!
LEIMERE PARK 2 - Aarberg moderno
In Alten Lyss-Strasse 4 ad Aarberg, sta sorgendo il LEIMERE PARK 2, che sarà disponibile per l'occupazione nella primavera del 2027. Il 2° piano è ancora disponibile per l'affitto ed è progettato per un uso misto di uffici e spazi commerciali. Con una superficie totale di circa 800 m², offre opzioni di utilizzo flessibili. L'area può essere affittata nel suo insieme o suddivisa in unità più piccole. La pianta allegata mostra una possibile suddivisione dell'area.
...
Ripartizione dei costi
- Affitto netto
- CHF 16
- Costi aggiuntivi
- CHF 30
- Totale delle locazioni
- CHF 16
Dettagli immobile
- Disponibile dal
- Su accordo
- Anno di costruzione
- 2027



