Spazio ufficio in affitto - Alte Lyss-Strasse 4, 3270 Aarberg
Perché amerai questa proprietà
Layout flessibile di 800 m²
Costruzione di base di alta qualità
Coinvolti nella fase di pianificazione
Organizza una visita
Prenota una visita con Larissa oggi!
Leimere park 2 - aarberg moderno - spazi per uffici attraenti in affitto!
LEIMERE PARK 2 - Aarberg moderno
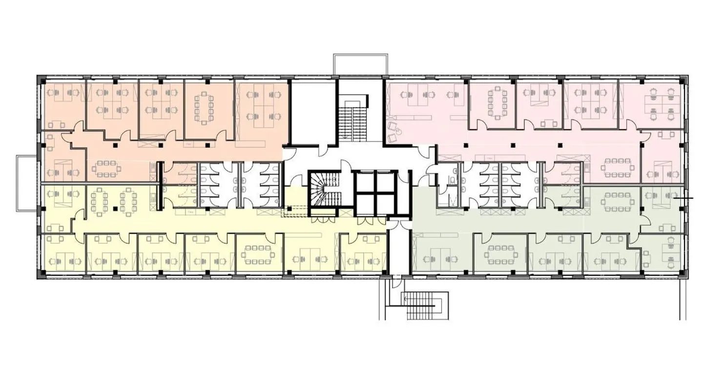
Il LEIMERE PARK 2, che potrà essere occupato nella primavera del 2027, è in fase di costruzione in Alte Lyss-Strasse 4 ad Aarberg. Il 2° piano è disponibile per l'affitto ed è progettato per un uso misto di uffici e spazi commerciali. Con una superficie totale di circa 800 m², offre possibilità di utilizzo flessibili. L'area può essere affittata nel suo insieme o suddivisa in aree parziali. La pianta allegata mostra una possibile distribuzione dell'area.
Gli spaz...
Dettagli immobile
- Disponibile dal
- 01.04.2027
- Anno di costruzione
- 2027



