Commerciale in affitto - 1870 Monthey
Perché amerai questa proprietà
Vetrina luminosa e visibile
Opzioni di layout flessibili
Ampio parcheggio disponibile
Organizza una visita
Prenota una visita oggi!
Nuovo spazio commerciale idealmente situato a monthey
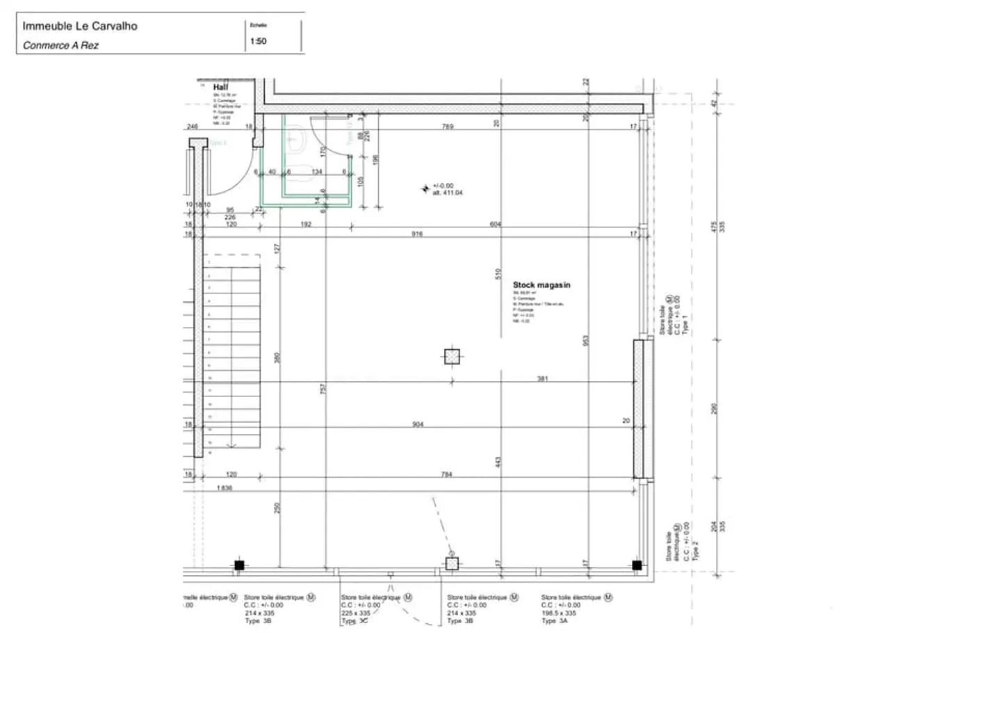
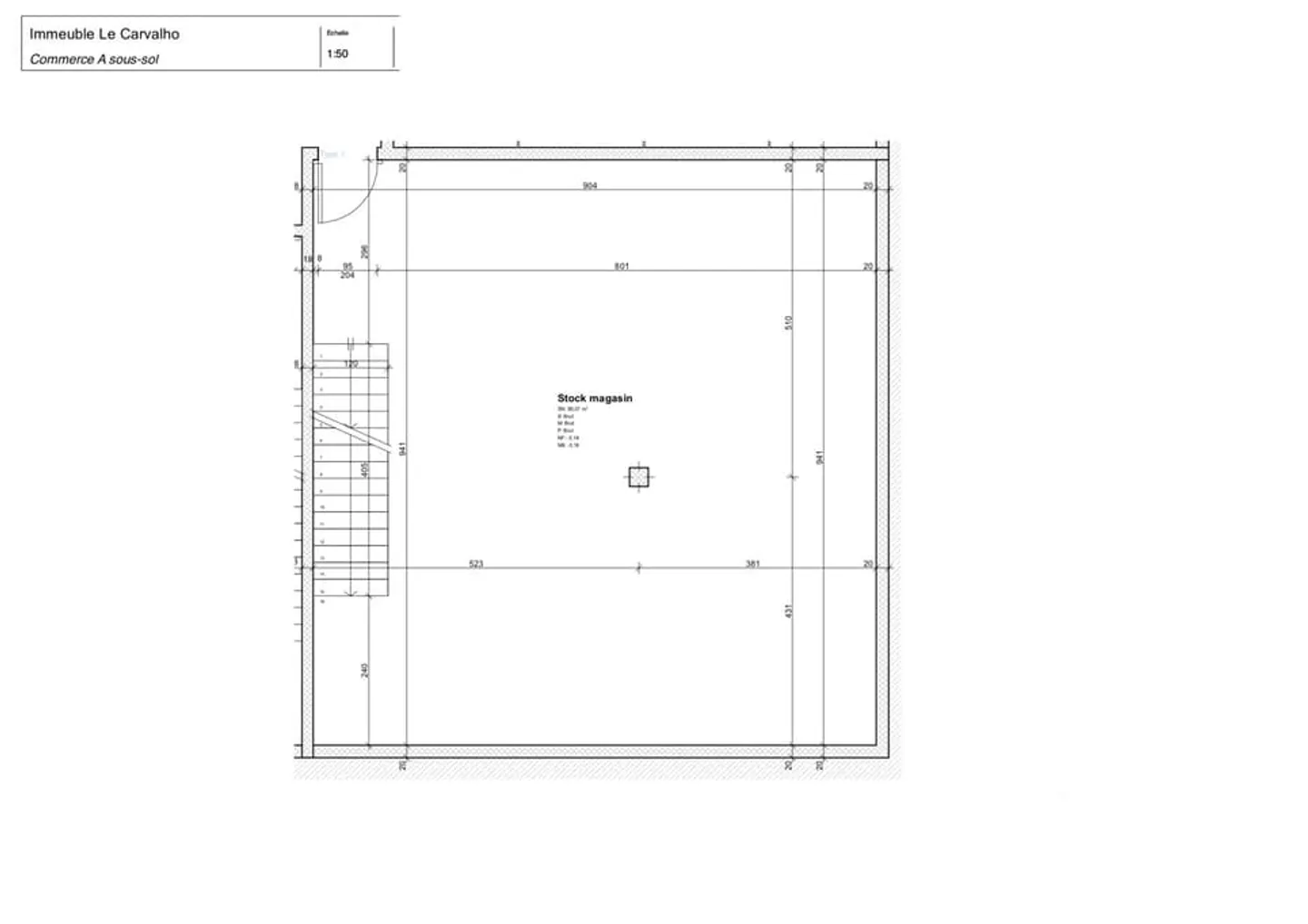
Se stai cercando un nuovo spazio commerciale, sarai affascinato da quest'area di 171m2 su 2 piani che beneficia di una bella vetrina luminosa ai margini della strada cantonale, offrendo un'eccellente visibilità e un facile accesso per i tuoi clienti, comprese le aree di parcheggio.
Attualmente in costruzione, questo spazio al piano terra sarà disponibile dal 1° dicembre 2025 e si compone come segue:
Piano terra
- Spazio commerciale di 86m2 dotato di grandi finestre
- WC
- Scala per raggiungere r...
Dettagli immobile
- Disponibile dal
- 01.12.2025




