1 / 6

Studio medico in affitto - Bergstrasse 137, 8707 Uetikon am See

1° piano
Prezzo su richiesta
-

Perché amerai questa proprietà

Opzioni di layout flessibili

Edificio standard Minergie

Posizione centrale con biblioteca

Organizza una visita

Prenota una visita con Paulo oggi!

Paulo Dias Lopes
Apleona Schweiz AG
Questa descrizione è stata tradotta automaticamente da Tedesco.

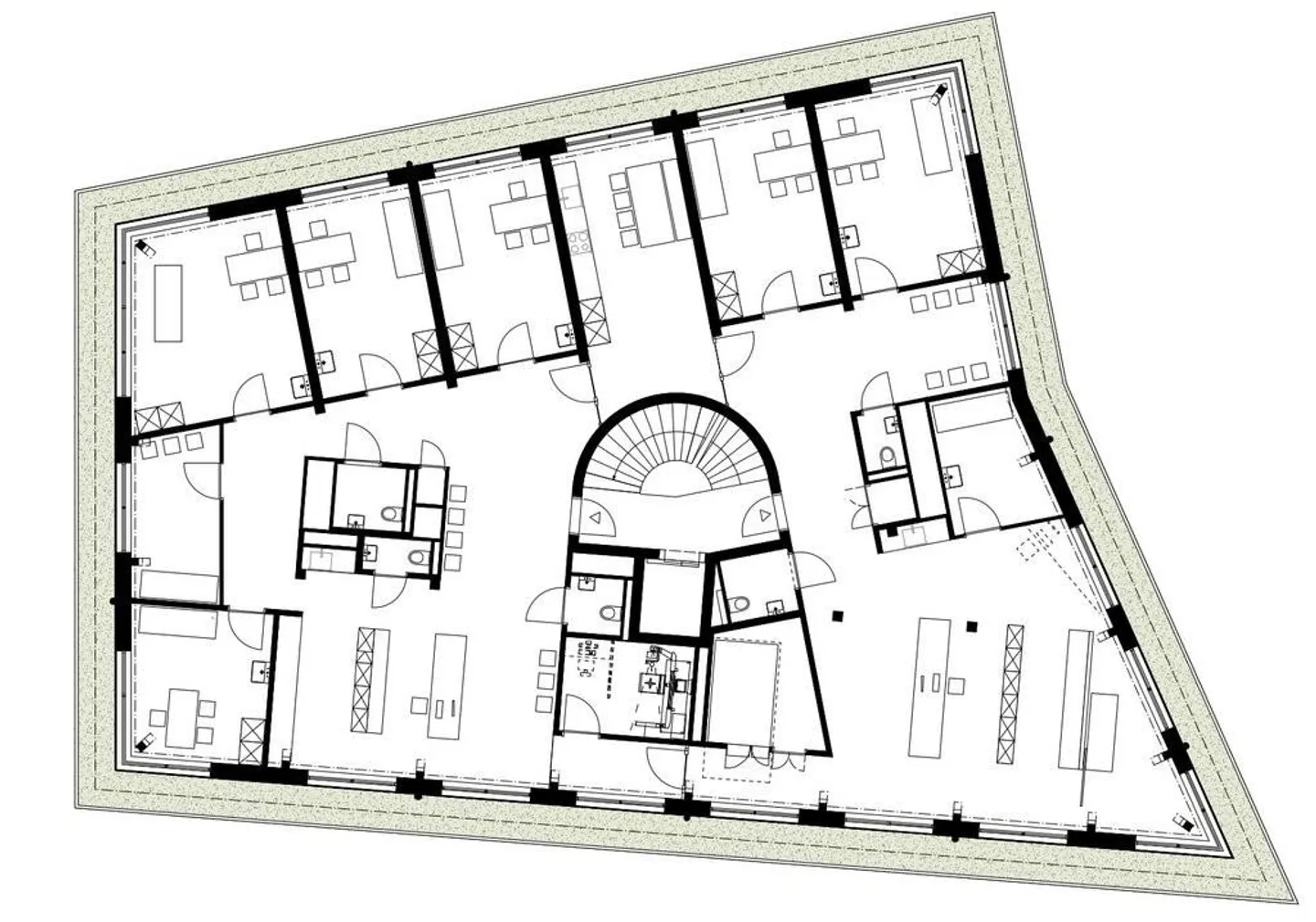
Qui potrebbe sorgere il tuo studio!

Stai cercando nuovi locali per il tuo studio medico o vuoi realizzarti nel settore sanitario? Allora abbiamo proprio quello che fa per te.

Il nuovo edificio sarà progettato come un centro medico e sarà completato dall'uso pubblico al piano terra da parte della biblioteca comunale. Il completamento è previsto per l'autunno 2025.

L'edificio all'avanguardia colpisce non solo per il suo aspetto ma anche per la sua posizione centrale. Altri vantaggi includono la costruzione secondo lo standard Minergie...

Dettagli immobile

Disponibile dal
Su accordo

Agenzia

Apleona Schweiz AG
Indirizzo:Wallisellen, Industriestrasse 21, 8304
Ref: 1835
Online da
16/07/2025
3 mesi fa

Località

Bergstrasse 137, 8707 Uetikon am See

Fonti