Spazio ufficio in affitto - 1226 Thônex
Perché amerai questa proprietà
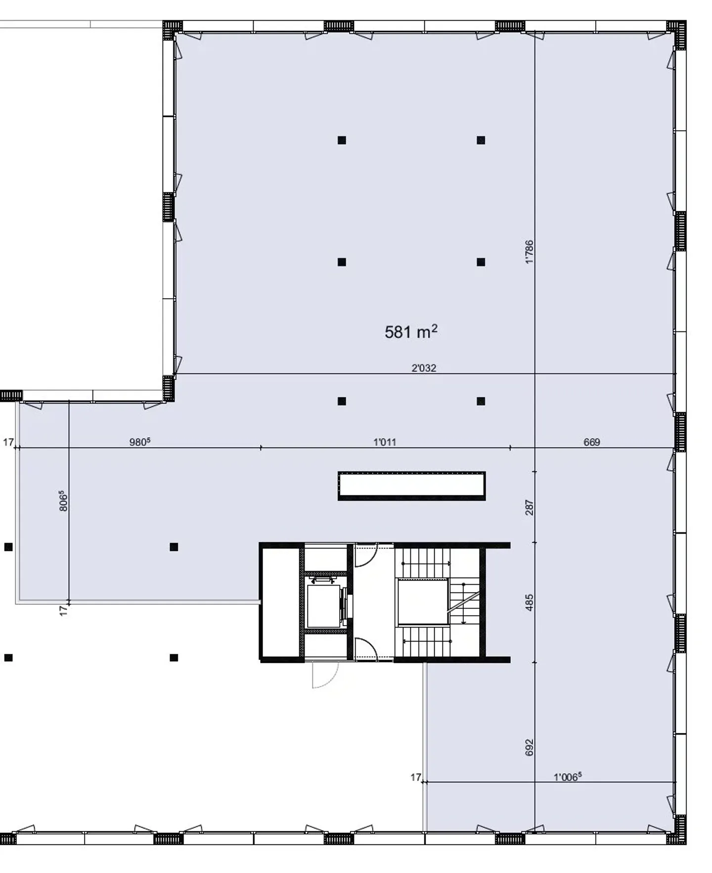
Opzioni di layout flessibili
Concetto energetico innovativo
Ascensori e montacarichi
Organizza una visita
Prenota una visita con Gaëtan oggi!
Il progetto di << BELLE-TERRE – I Comunali di Ambilly >> è il frutto di una stretta e lunga collaborazione tra un gruppo di sviluppatori, i servizi dello Stato di Ginevra e i rappresentanti dei comuni interessati, ai quali sono stati associati anche residenti e associazioni.
Situato sulla Riva Sinistra a meno di 5 km dal centro città e al confine con il Comune di Thônex, questo quartiere è perfettamente integrato nelle reti di trasporto ginevrine; una posizione privilegiata a Ginevra.
Dettagli immobile
- Disponibile dal
- Su accordo
- Superficie abitabile
- 1720 m²
- Superficie terreno
- 1720 m²



