Spazio ufficio in affitto - Place Du Traité-De-Turin, 1226 Thônex
Perché amerai questa proprietà
Concetto energetico innovativo
Opzioni di layout flessibili
Ascensori e montacarichi
Organizza una visita
Prenota una visita con Gaëtan oggi!
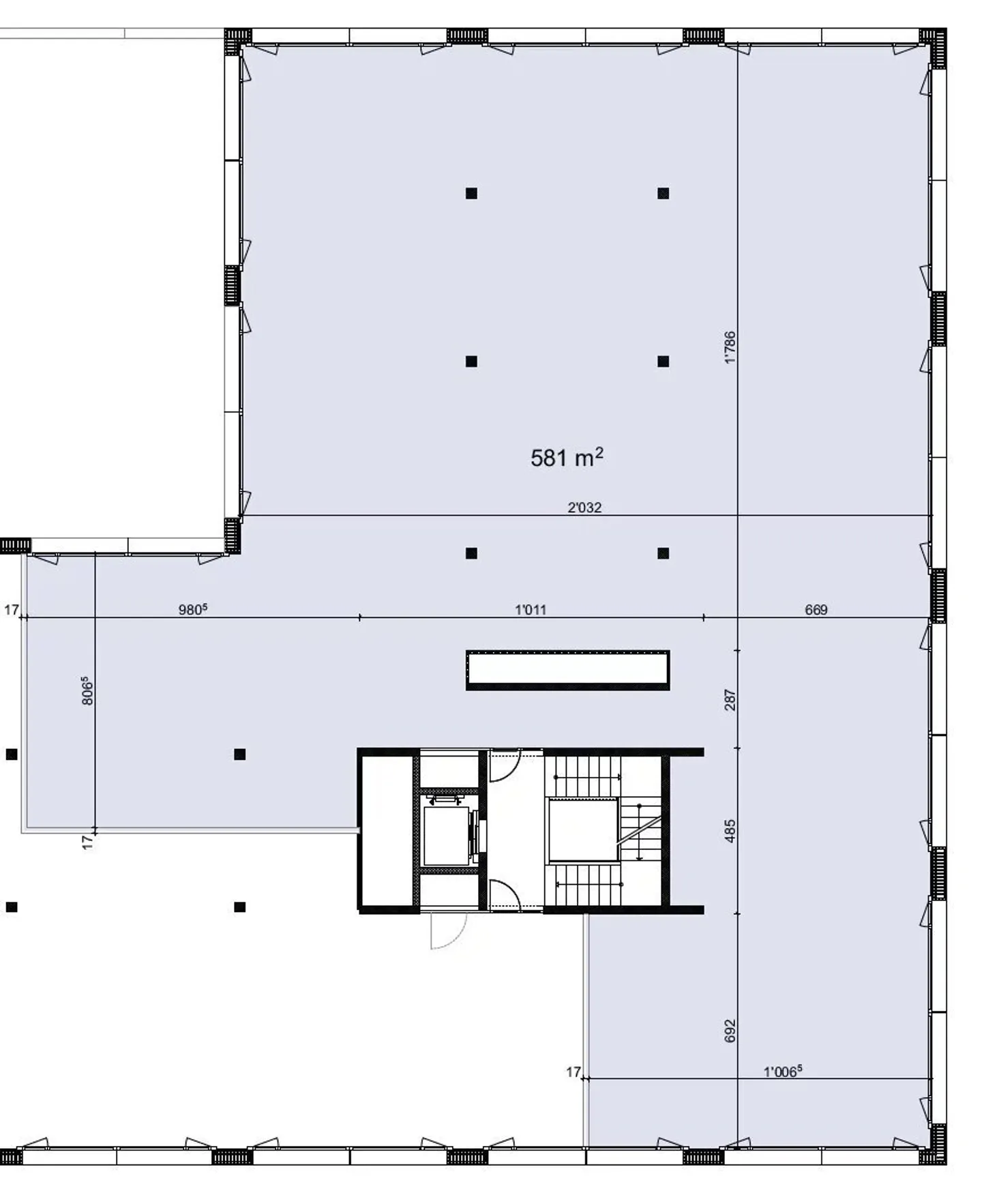
Superfici amministrative di 580 m² nel cuore di un progetto di grande portata
Il progetto << BELLE-TERRE ? Les Communaux d'Ambilly >> è il frutto di una stretta e lunga collaborazione tra un gruppo di sviluppatori, i servizi dello Stato di Ginevra e i rappresentanti dei comuni interessati, ai quali sono stati associati anche residenti e associazioni.
Situato sulla Riva Sinistra a meno di 5 km dal centro città e al confine con il Comune di Thônex, questo quartiere è perfettamente integrato nelle reti di trasporto ginevrine; una posizione privilegiata a Ginevra...
Dettagli immobile
- Disponibile dal
- Su accordo
- Superficie abitabile
- 1200 m²
- Superficie utilizzabile
- 1200 m²



