Spazio ufficio in affitto - Strehlgasse 12, 6430 Schwyz
Perché amerai questa proprietà
Fascino di un edificio storico
Posizione centrale con servizi
Parcheggio per clienti disponibile
Organizza una visita
Prenota una visita con Steiner oggi!
Spazio commerciale caratteristico nel cuore di schwyz
Qui è possibile lavorare
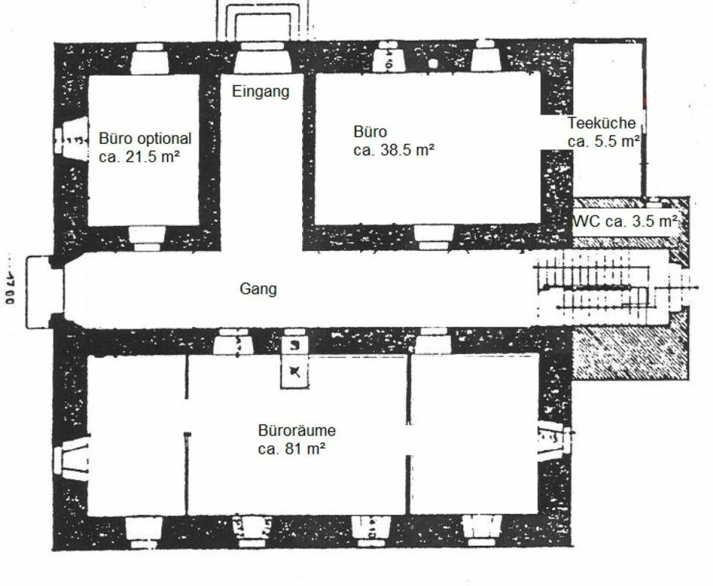
Nel centro di Schwyz si trova la storica proprietà con l'ufficio storico splendidamente sviluppato al piano terra.
La piazza principale di Schwyz, le banche, l'ufficio postale, i negozi, i ristoranti e i mezzi pubblici sono facilmente raggiungibili a piedi. Un parcheggio pubblico si trova di fronte alla proprietà (MythenForum Schwyz).
Il tuo nuovo posto di lavoro?
L'ufficio di circa 129 m² si trova al piano terra ed è suddiviso in più stanze. Tutte le stanze sono collegate d...
Ripartizione dei costi
- Affitto netto
- CHF 2’750
- Costi aggiuntivi
- CHF 350
- Totale delle locazioni
- CHF 2’750
Dettagli immobile
- Disponibile dal
- Su accordo



