Proprietà industriale in affitto - Chemin Des Aulx 12, 1228 Plan-les-Ouates
Perché amerai questa proprietà
Layout uffici flessibili
Ottimo trasporto pubblico
Parcheggio disponibile in loco
Organizza una visita
Prenota una visita con S.Schaer oggi!
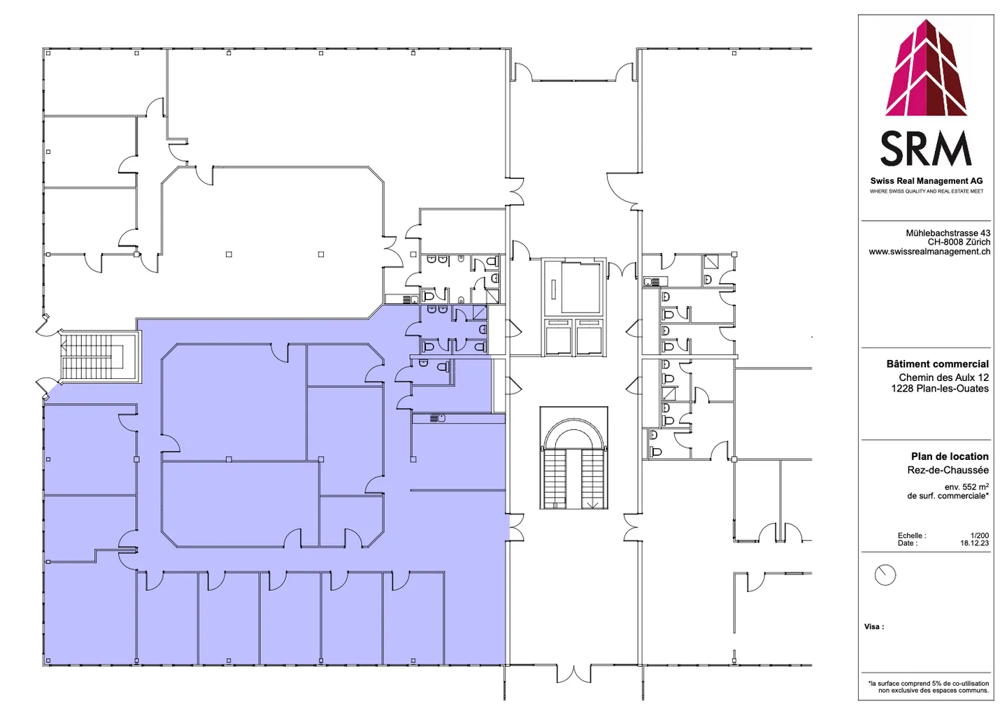
552m2 Uffici al piano terra del CTN 12 a Plan-les-Ouates
_Spazi di vendita, uffici e laboratori nel CTN a Plan-les-Ouates_
_Prezzo a partire da 270.-/m² = Spazio officina esistente (nello stato, non ristrutturato)_
_Prezzo a partire da 270.-/m² = Spazio ufficio esistente (nello stato, non ristrutturato)_
_Prezzo a partire da 290.-/m² = Spazio laboratorio esistente (nello stato, non ristrutturato)_
_Il prezzo finale dipende dalla posizione, dalle condizioni dei locali, dall'investimento del proprietario e dalla durata del contratto di locazione._
_Il campus...
Dettagli immobile
- Disponibile dal
- 24.01.2024
- Superficie abitabile
- 552 m²
- Superficie utilizzabile
- 552 m²



