Spazio ufficio in affitto - Chemin Du Château-Bloch 11, 1219 Le Lignon
Perché amerai questa proprietà
Edificio certificato Minergie
Spazio di lavoro completamente attrezzato
Vicino ai mezzi pubblici
Organizza una visita
Prenota una visita oggi!
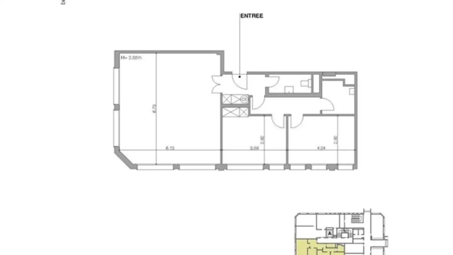
Ufficio
Superficie amministrativa di circa 290 m2 in un edificio recente Minergie
In un edificio certificato Minergie, superficie amministrativa consegnata completamente attrezzata: pavimento rialzato, controsoffitto tecnico, aria raffrescata, illuminazione nei corridoi, moquette. cucina, attrezzata 1 open spaces, 3 uffici in vetro e un locale IT. Vista libera sul Giura.
L'edificio si trova a 10-15 minuti dal centro di Ginevra, a 3 minuti dall'autostrada A1 e a 10 minuti dall'Aeroporto Internazionale di...
Ripartizione dei costi
- Affitto netto
- CHF 10’154
- Costi aggiuntivi
- CHF 1’213
- Totale delle locazioni
- CHF 10’154
Dettagli immobile
- Disponibile dal
- Su accordo
- Superficie abitabile
- 290 m²



