Spazio ufficio in affitto - Neuhofstrasse 10, 6340 Baar
Perché amerai questa proprietà
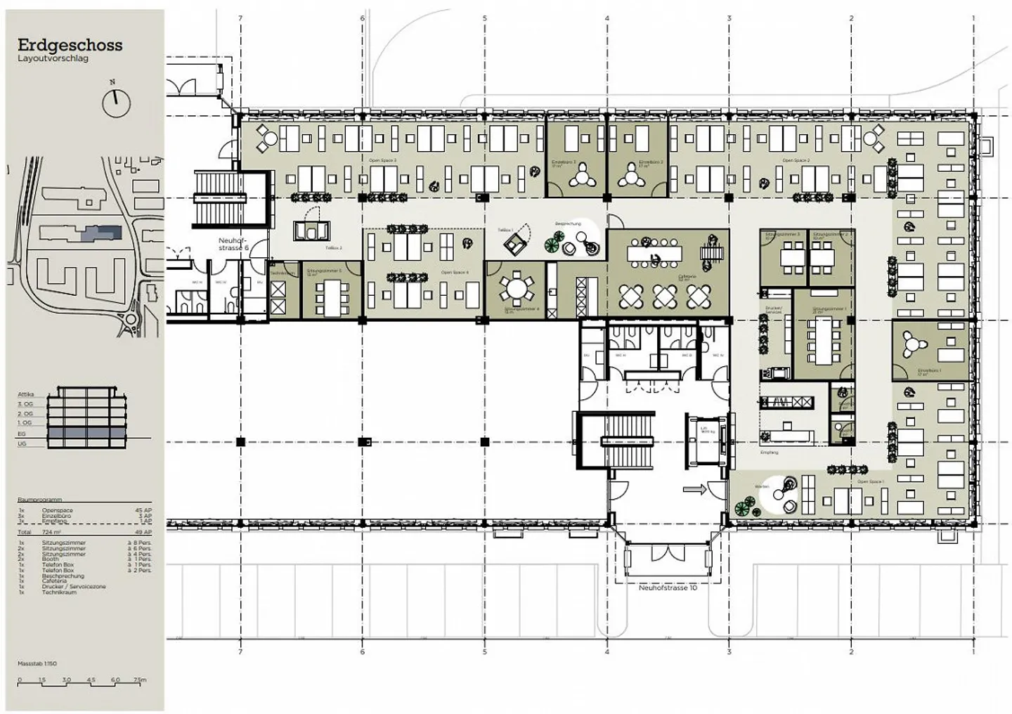
Personalizzazione flessibile degli inquilini
Alta efficienza energetica
Ristorante e sale riunioni in loco
Organizza una visita
Prenota una visita con Andreas oggi!
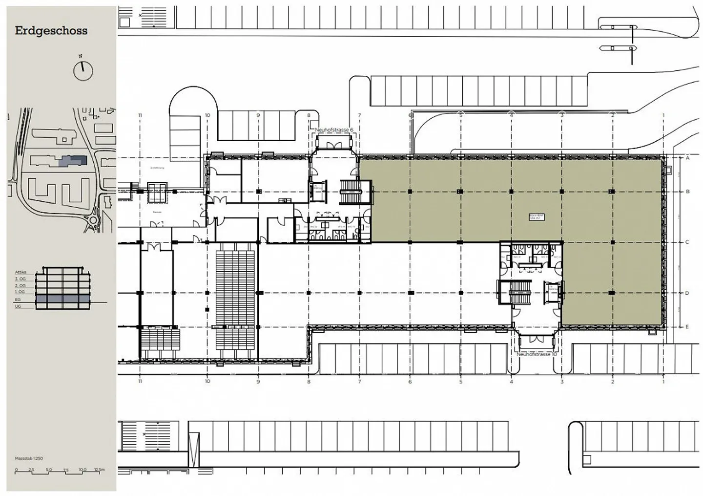
Soluzioni per uffici secondo le tue idee - pianifica in modo flessibile, comodamente...
L'edificio per uffici costruito nel 1989 in Neuhofstrasse 6/10 a Baar, con la sua distintiva facciata in metallo bronzo, sta subendo una completa ristrutturazione interna.
Le innovazioni includono la modernizzazione completa degli ingressi, delle scale e delle strutture sanitarie. Inoltre, vengono create toilette per disabili senza barriere e ampi spogliatoi e docce - ideali per i dipendenti attivi.
L'edificio impressiona per l'alta efficienza energetica, ottenuta grazie a una pompa di calore geot...
Dettagli immobile
- Disponibile dal
- Su accordo
- Anno di costruzione
- 1989
- Anno di ristrutturazione
- 2025



