Spazio ufficio in affitto - Neuhofstrasse 6, 6340 Baar
Perché amerai questa proprietà
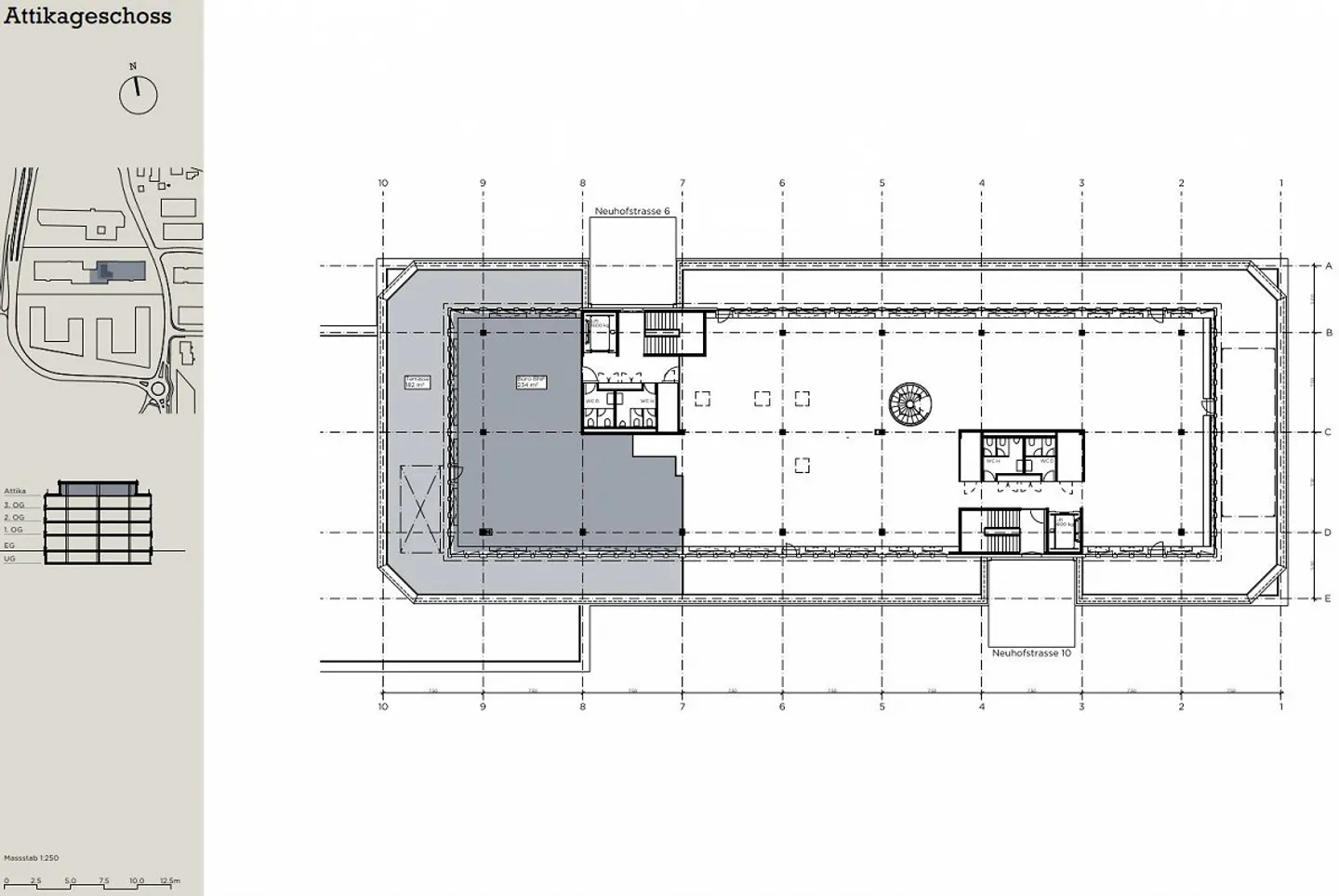
Impressionante terrazza di 182 m²
Strutture modernizzate
Eccellenti collegamenti di trasporto
Organizza una visita
Prenota una visita con René oggi!
Attico con terrazza esclusiva
L'edificio per uffici costruito nel 1989, situato in Neuhofstrasse 6/10 a Baar e dotato di una caratteristica facciata in metallo bronzeo, è oggetto di una completa ristrutturazione interna. Le novità includono la modernizzazione completa degli ingressi, delle scale e dei servizi igienici. Inoltre, saranno creati servizi igienici per disabili senza barriere architettoniche e ampi spazi doccia e spogliatoi, ideali per i dipendenti attivi. L'edificio si distingue per un'elevata efficienza energeti...
Dettagli immobile
- Disponibile dal
- Su accordo
- Anno di costruzione
- 1989
- Anno di ristrutturazione
- 2025



