Appartamento in affitto - Guggenbühlstrasse 75, 8404 Winterthur
Perché amerai questa proprietà
Balcone soleggiato
Cucina moderna attrezzata
Doccia a pavimento
Organizza una visita
Prenota una visita con Wintimmo oggi!
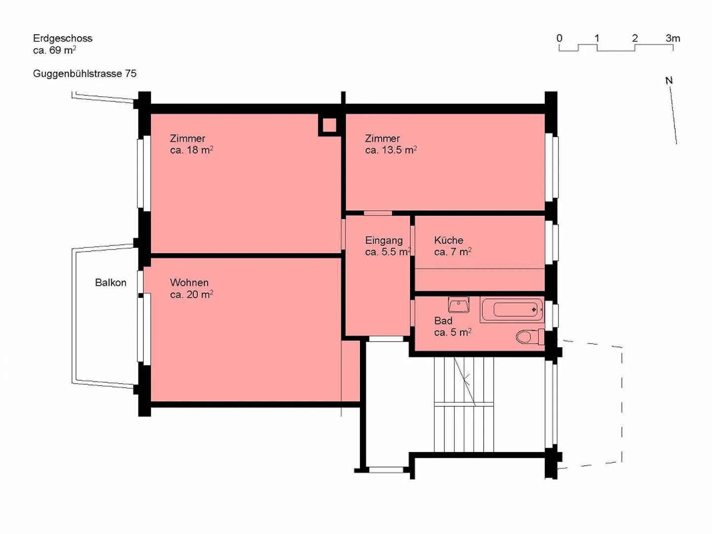
Appartamento 3 locali a Oberwinterthur
Affittiamo subito questo appartamento di 3 locali a Oberwinterthur.
I mezzi pubblici sono raggiungibili in pochi minuti a piedi. Diverse opportunità di shopping e la Badi Oberi si trovano nelle immediate vicinanze.
L'appartamento è dotato di:
- Cucina con forno, cappa aspirante, torre di lavaggio, ecc.
- Soggiorno con armadi a muro
- Pavimento in parquet nelle stanze luminose
- Bagno con doccia a filo pavimento
- Balcone soleggiato
- 1 cantina e 1 soffitta
Abbiamo suscitato il tuo interesse? Contattaci p...
Ripartizione dei costi
- Affitto netto
- CHF 1’580
- Costi aggiuntivi
- CHF 128
- Totale delle locazioni
- CHF 1’580
Dettagli immobile
- Disponibile dal
- Su accordo
- Stanze
- 3
- Superficie abitabile
- 69 m²
- Piano
- Terra



