Attico in affitto - Hobelwerkweg 23, 8404 Winterthur
Perché amerai questa proprietà
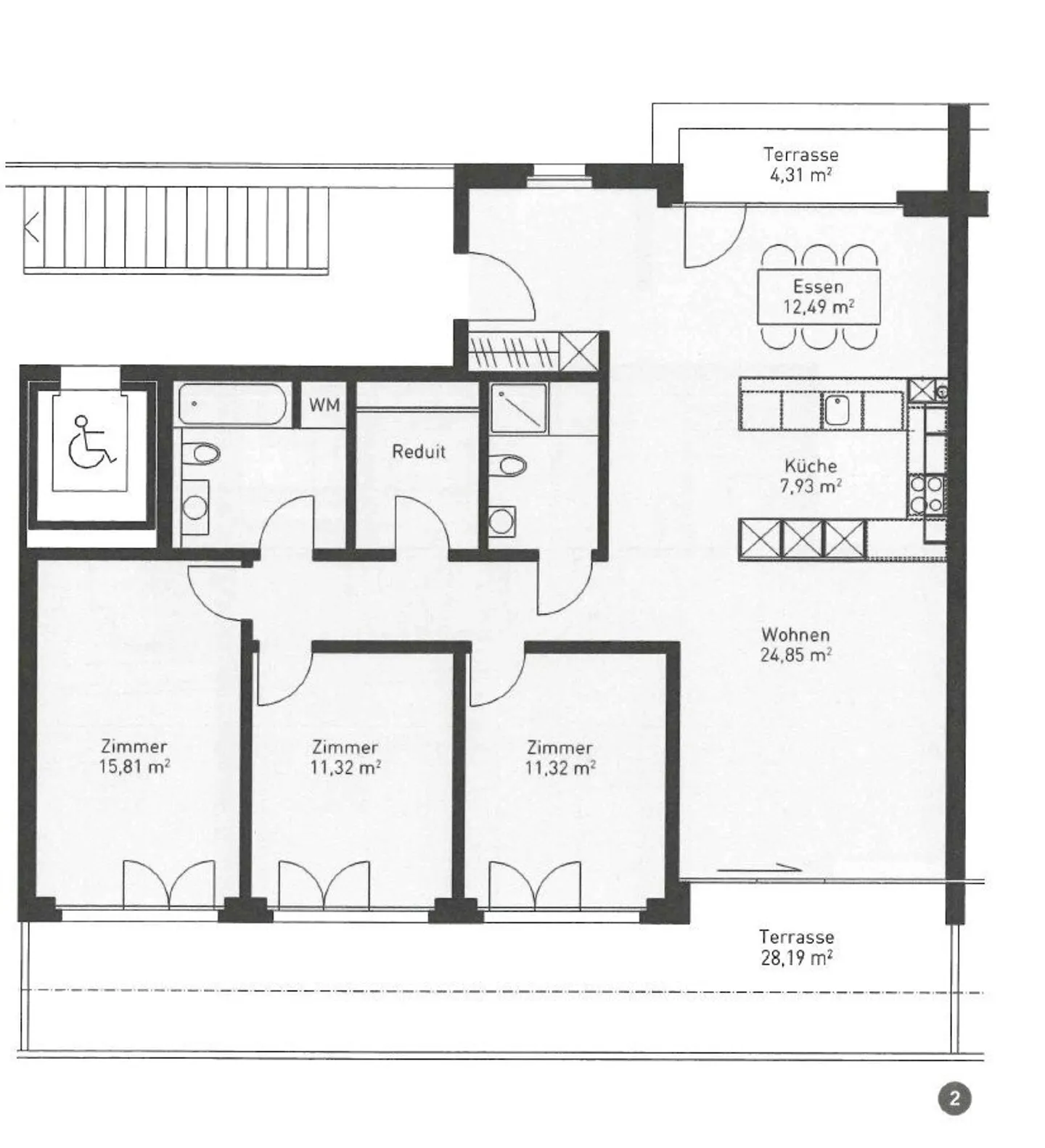
Terrazze spaziose per rilassarsi
Pavimento in parquet di alta qualità
Accesso diretto ai mezzi pubblici
Organizza una visita
Prenota una visita con Lean oggi!
Attico esclusivo con molta luce e atmosfera accogliente
La Posizione
Urbano e allo stesso tempo adatto ai bambini, il quartiere di Oberwinterthur si presenta. Nel vecchio centro del villaggio e intorno alla stazione ferroviaria, il più grande quartiere della città offre opportunità commerciali e di acquisto ideali. Le scuole e i giardini d'infanzia si trovano nelle immediate vicinanze del complesso residenziale.
Aree ricreative con laghi e foreste per escursioni, jogging e ciclismo si trovano a pochi minuti a piedi.
Im Takt è situato in modo ottimale so...
Ripartizione dei costi
- Affitto netto
- CHF 3’000
- Costi aggiuntivi
- CHF 260
- Totale delle locazioni
- CHF 3’000
Dettagli immobile
- Disponibile dal
- 03.03.2026
- Stanze
- 4.5
- Anno di costruzione
- 2007
- Superficie abitabile
- 116 m²
- Piano
- 5°



