Attico in affitto - Kirchgasse 65, 8706 Meilen
Perché amerai questa proprietà
Balcone accogliente con vista lago
Camere luminose e affascinanti
Pratico armadio a muro
Organizza una visita
Prenota una visita con Alyssa oggi!
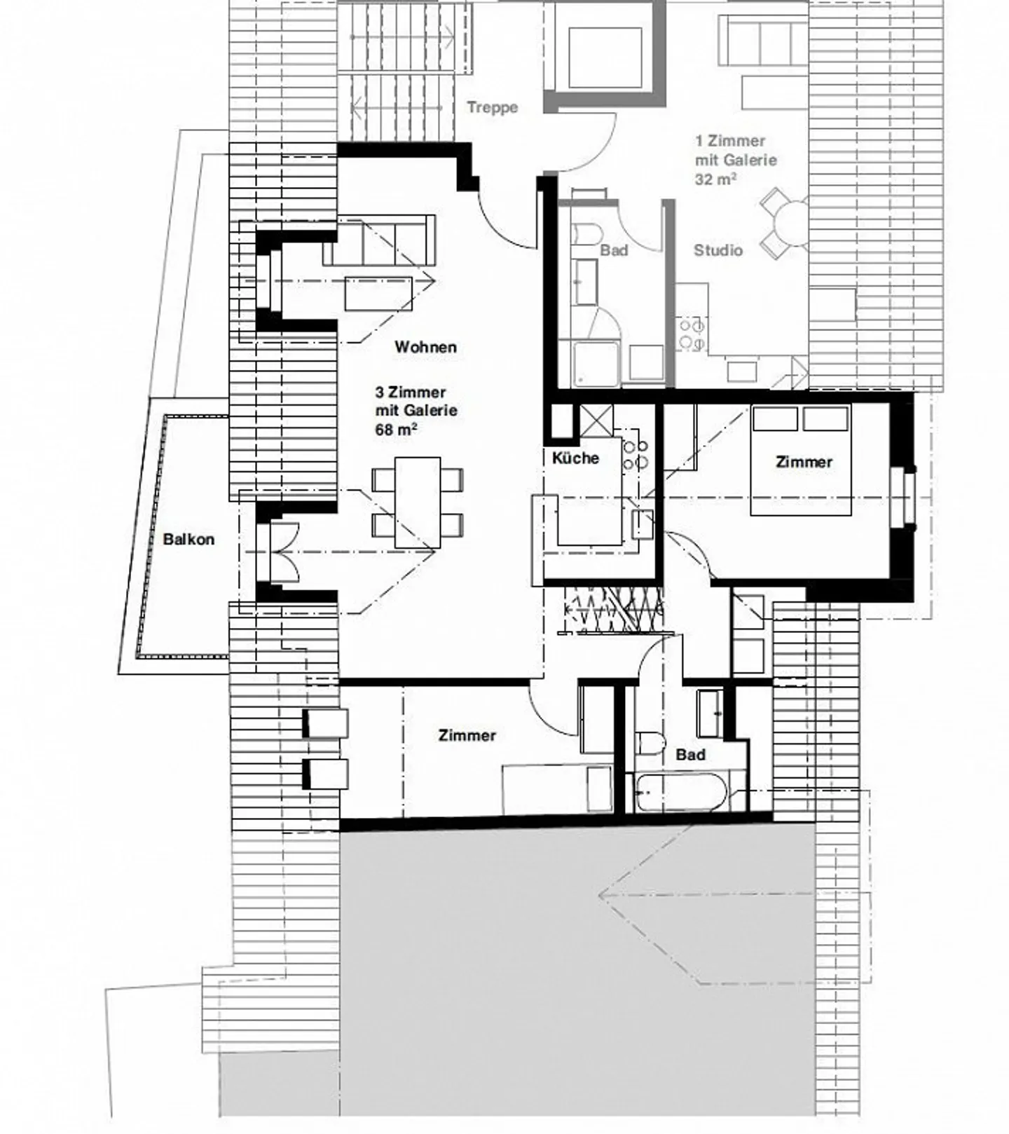
Vivere centralmente con charme e vista lago
Questo affascinante appartamento di 3 stanze nel centro di Meilen, costruito nel 2019, colpisce per la sua posizione centrale, il suo particolare fascino e un'atmosfera abitativa piacevole. L'appartamento è ideale per singoli o coppie che apprezzano la vita centrale con vista lago.
Un punto forte dell'appartamento è il balcone accogliente con vista lago, che invita a sostare e completa perfettamente l'esperienza abitativa. Le stanze sono luminose e accoglienti, mentre la piccola galleria al piano...
Ripartizione dei costi
- Affitto netto
- CHF 3’100
- Costi aggiuntivi
- CHF 220
- Totale delle locazioni
- CHF 3’100
Dettagli immobile
- Disponibile dal
- 13.01.2026
- Stanze
- 3
- Anno di costruzione
- 2019
- Superficie abitabile
- 82 m²
- Piano
- 3°




