Appartamento a gradini in affitto - Rainweg 3, 8703 Erlenbach ZH
Perché amerai questa proprietà
Vista mozzafiato sulle montagne
Terrazza spaziosa di 117,9 m2
Vita moderna a Erlenbach
Organizza una visita
Prenota una visita con Kehl oggi!
SOGNO ABITATIVO CON TERRAZZA
L'indirizzo residenziale Rainweg 3 rappresenta la massima qualità abitativa in una delle migliori zone residenziali del comune di Erlenbach, estremamente popolare, vicino al villaggio/alla città e alla natura.
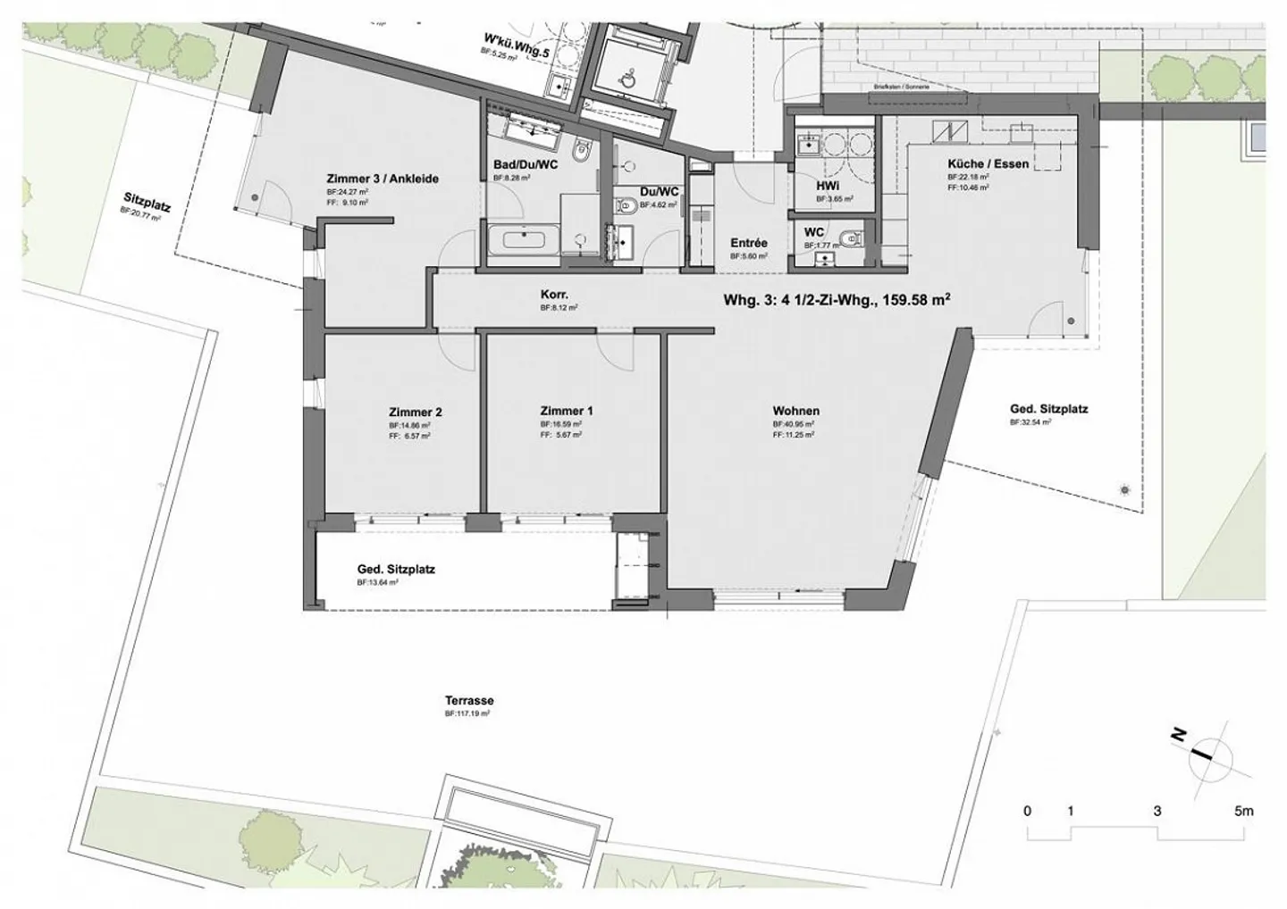
L'appartamento attraente di 4,5 locali (159,6 m2 di superficie abitabile) al piano terra rialzato della moderna casa di 5 famiglie può essere affittato con due posti auto in garage a CHF 175.-/mese.
Bella vista panoramica, vista montagna, vista parziale sul lago.
Terrazza: 117,9 m2. Tre aree ...
Ripartizione dei costi
- Affitto netto
- CHF 7’208
- Costi aggiuntivi
- CHF 450
- Totale delle locazioni
- CHF 7’208
Dettagli immobile
- Disponibile dal
- Su accordo
- Stanze
- 4.5
- Anno di costruzione
- 2024
- Superficie abitabile
- 159.6 m²



