1 / 9

Appartamento in affitto - Vordergasse 10, 8200 Schaffhausen

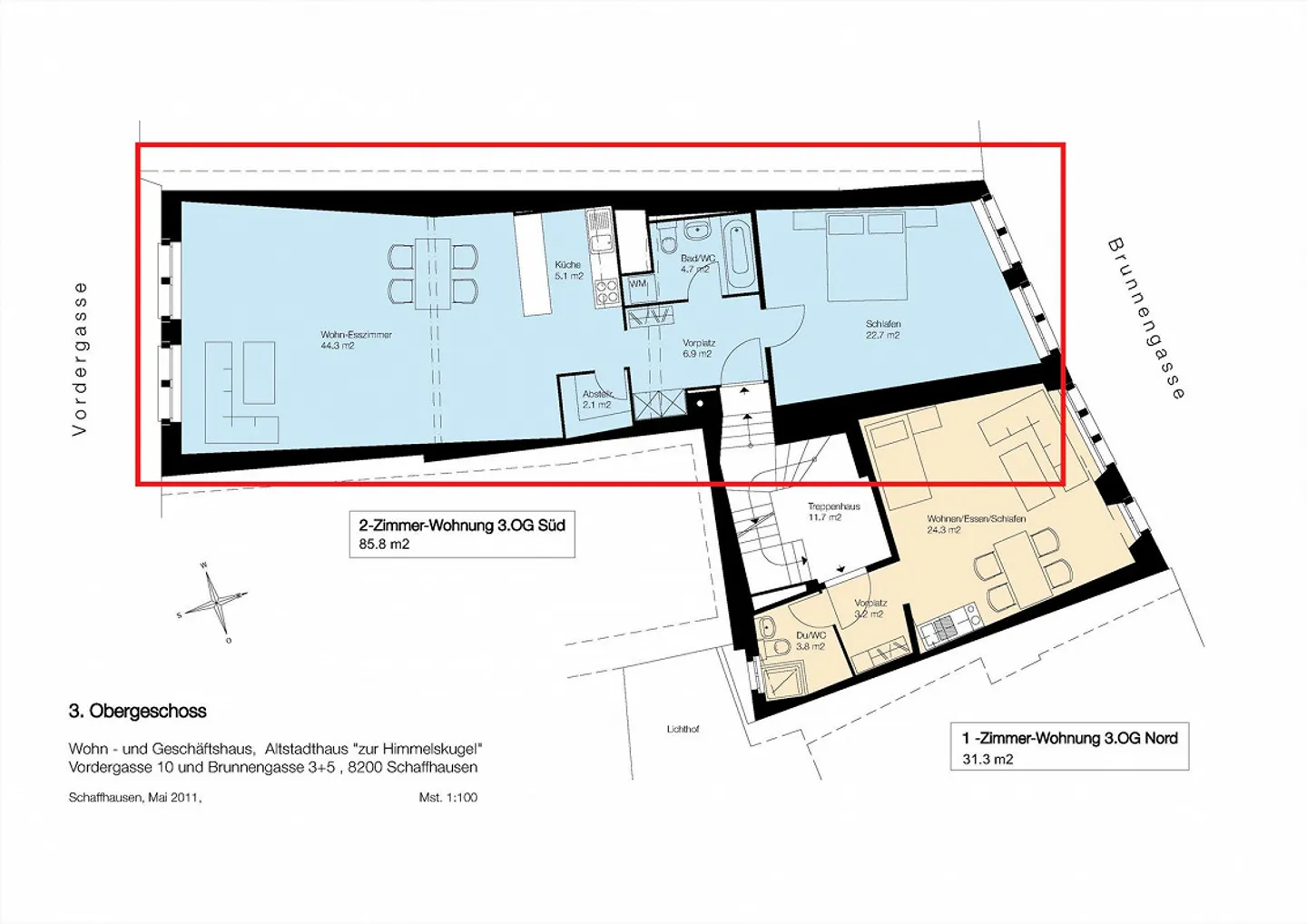
2.5 rooms • 85 m² • 3° piano
CHF 1’590.-
CHF 224 m² / year

Perché amerai questa proprietà

Aree abitative luminose e spaziose

Cucina ad angolo funzionale

Ritiro tranquillo in centro città

Organizza una visita

Prenota una visita oggi!

IT3 Treuhand + Immobilien
Questa descrizione è stata tradotta automaticamente da Tedesco.

Appartamento affascinante e spazioso nel centro di sciaffusa

In una posizione centrale, nel cuore della pittoresca vecchia città di Sciaffusa, affittiamo un ampio appartamento di 2,5 locali al 3° piano. La stazione ferroviaria è raggiungibile in meno di 10 minuti a piedi.

L'appartamento offre un ambiente abitativo piacevole con stanze luminose e un pavimento in laminato continuo che crea un'atmosfera calda e accogliente.

La cucina ad angolo aperta è progettata in modo funzionale e si integra armoniosamente nell'area soggiorno, ideale per chi ama cucinare se...

Dettagli immobile

Disponibile dal
01.01.1970
Stanze
2.5
Superficie abitabile
85
Piano

Caratteristiche

Vista libera
Animali ammessi

Agenzia

IT3 Treuhand + Immobilien
Ref: 1950.it3.1903-1031

Località

Vordergasse 10, 8200 Schaffhausen

Fonti