Fritz + Caspar Jenny AG, Immosupport
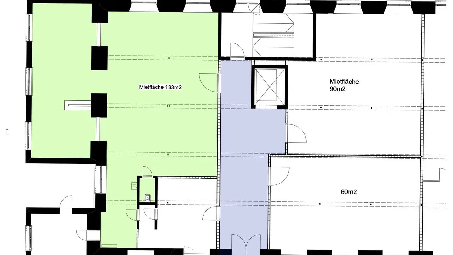
679 m² • Spazio di archiviazione
Fabrikstrasse 2, 8867 Niederurnen
Altezza di 3,20 m
Stanze asciutte e deumidificate
Accesso tramite nuovo ascensore
Fritz + Caspar Jenny AG, Immosupport
Spazio di archiviazione in affitto
Fabrikstrasse 2, 8867 Niederurnen
Spazio di stoccaggio conveniente in affitto nel seminterrato
679 m² • Spazio di archiviazione
Altezza di 3,20 m
Stanze asciutte e deumidificate
Accesso tramite nuovo ascensore